Objektbeschreibung
EXKLUSIVES GEWERBEOBJEKT NAHE WIENER STAATSOPER – TOPLAGE INNENSTADT
Infrastruktur
Der 1. Bezirk bietet eine erstklassige Infrastruktur mit zahlreichen Kindergärten, Volksschulen, weiterführenden Schulen sowie Universitäten. Ärzte, Apotheken und eine Vielzahl an Einkaufsmöglichkeiten, Restaurants und kulturellen Einrichtungen befinden sich in fußläufiger Entfernung. Die Kärntner Straße – eine der bekanntesten Einkaufsstraßen Wiens
Mehr lesen
Objekt ID: 1977050
Preis: € 1.499.000
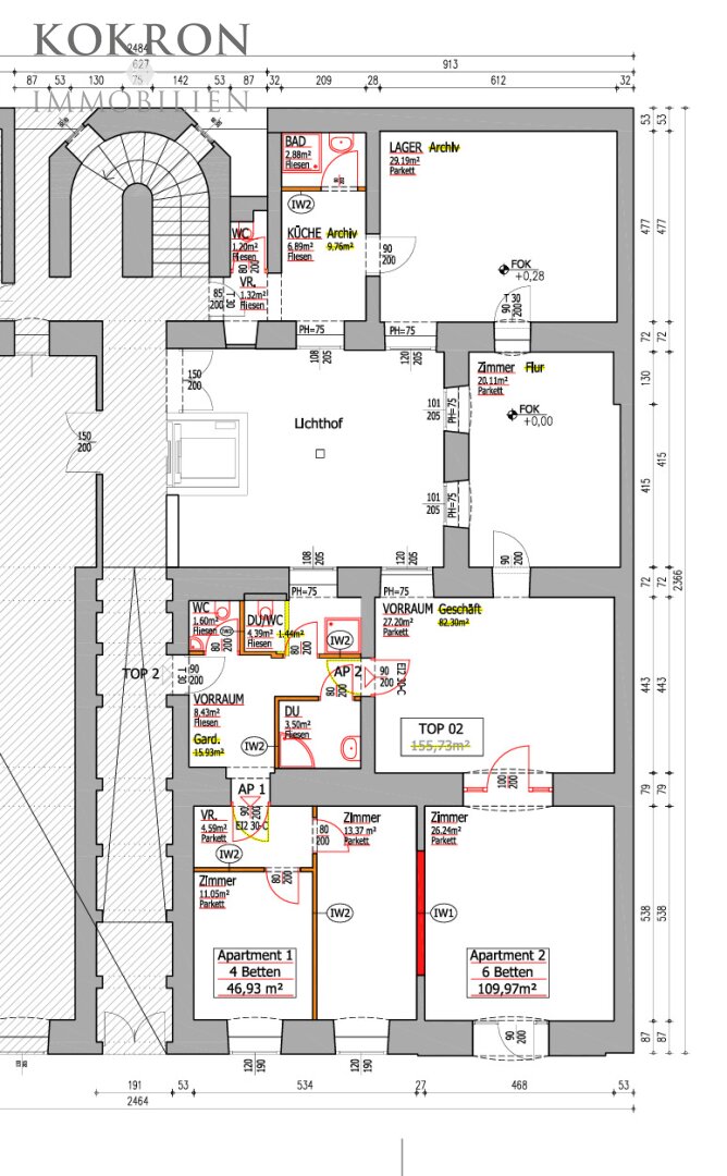
Nutzfläche: 0 m2
Gesamtfläche: 156 m2
Ziimmer insgesamt: 6
Schlafzimmer: 6
Badezimmer: 3
Nutzungsart: Gewerbe
Provisionspflichtig: ja
Provision: 53.964,00 € inkl. 20% USt.
HWB: 99 kWh/(m²*a)
HWB Klasse: D
E-Ausweis Gültig Bis:: 24.10.2022
Energieausweis Art: Bedarf
Beziehbar: nach Vereinbarung
WC: 3
vollmöbliert
barrierefrei
Einbauküche
Altbau
Fernheizung
Ähnliche Objekte
Modern sanierte 2-Zimmer Wohnung + Fussboden...
€ 299.000
2
Schlafzimmer
1
Badezimmer
51 m2
Größe
Februar 15, 2026






