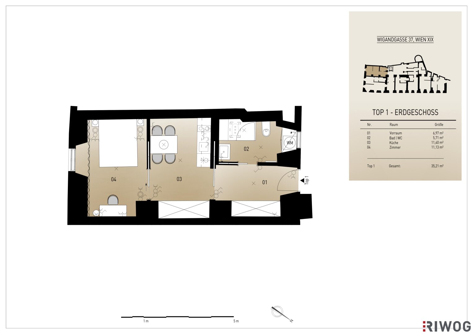
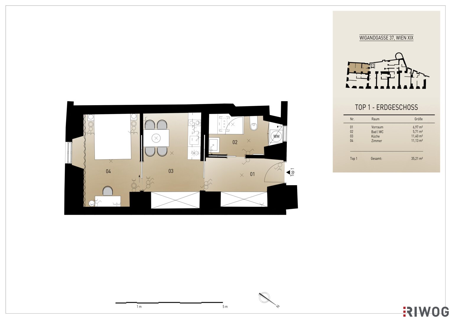
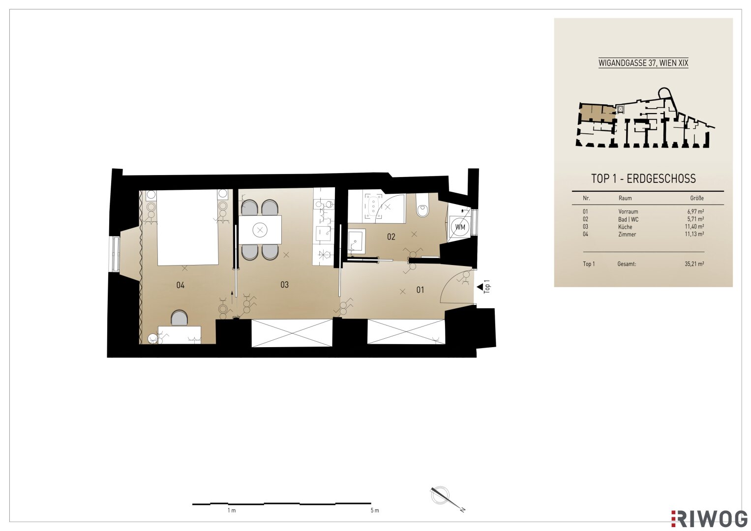
Objektbeschreibung
Der „Freihof“ zählt zu den seltenen Baujuwelen Wiens. Das denkmalgeschützte Gebäude aus dem Jahr 1455 wurde mit höchster Handwerkskunst aufwendig generalsaniert und in seinen historischen Glanz zurückversetzt.
Originale Kreuzgewölbedecken und sorgfältig restaurierte Details erzählen von vergangenen Jahrhunderten und verleihen jeder Wohnung eine unverwechselbare Atmosphäre – ein Ort, an dem Geschichte
Mehr lesen
Objekt ID: 1990737
Preis: € 195.000
Nutzfläche: 35 m2
Gesamtfläche: 0 m2
Ziimmer insgesamt: 0
Schlafzimmer: 0
Badezimmer: 4
Nutzungsart: Wohnen
HWB: 56,48 kWh/(m²*a)
HWB Klasse: C
FGEE: 1.5
Energieausweis Art: Bedarf
Beziehbar: sofort
WC: 1
Gas
Bad mit Fenster
Zentralheizung
Ähnliche Objekte
Starterwohnung I Saniert I 3 Zimmer [A\]
€ 279.000
2
Schlafzimmer
1
Badezimmer
54 m2
Größe
April 19, 2026



![Starterwohnung I Saniert I 3 Zimmer [A] HK9NHXCYNG23YOYf8zX79](https://gesucht-gefunden.at/wp-content/uploadstorage/2026/04/HK9NHXCYNG23YOYf8zX79-525x350.jpg)












