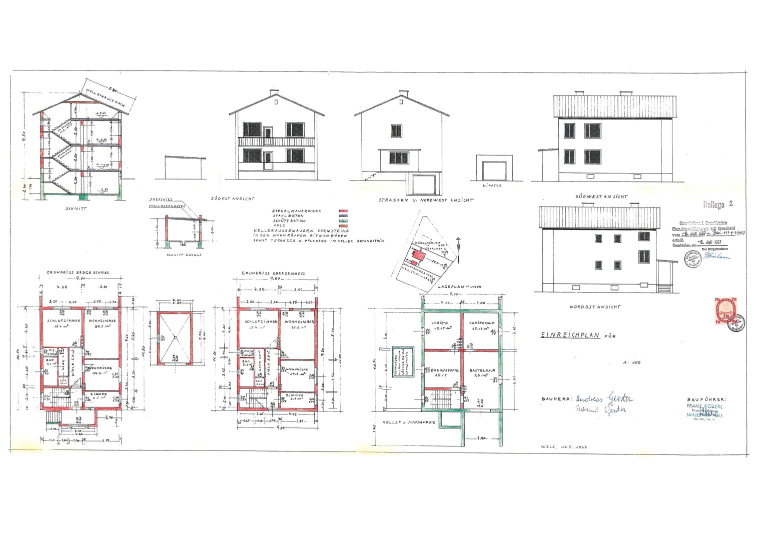
Objektbeschreibung
Dieses Haus punktet mit seiner zentralen Lage, dem großen Grundstück und mit der Möglichkeit von 2 getrennten Wohneinheiten. Eine Garage für zwei Fahrzeuge und der großzügige Keller (71,46 m2) bieten viel Platz für Ihre Hobbys oder für Kellerabteile je Wohneinheit. Es gilt die OÖ. Bauordnung bzw. OÖ. BauTG. Das Haus
Mehr lesen
Objekt ID: 1993657
Preis: € 330.000
Nutzfläche: 151 m2
Gesamtfläche: 223 m2
Ziimmer insgesamt: 6
Schlafzimmer: 6
Badezimmer: 2
Nutzungsart: Wohnen
Provisionspflichtig: ja
Provision: 3% des Kaufpreises zzgl. 20% USt.
HWB: 308,30 kWh/(m²*a)
HWB Klasse: G
FGEE: 3.82
E-Ausweis Gültig Bis:: 05.07.2032
Energieausweis Art: Bedarf
WC: 2
Altbau
Gas
Zentralheizung



