Objektbeschreibung
LEO 131 – 1210 Wien – Nähe Theresa-Tauscher-Park und Hans-Hirsch-Park
– PROVISIONSFREI –
Informationen zum Objekt
Es wurden insgesamt 232 top ausgestattete Wohneinheiten errichtet.
Die Wohnungsgrößen reichen von 1 bis 3 Zimmern mit ca. 33 m² bis 83 m² und werden zwischen € 599,00 – und € 1.249,00 vermietet.
Jede Wohnung
Mehr lesen
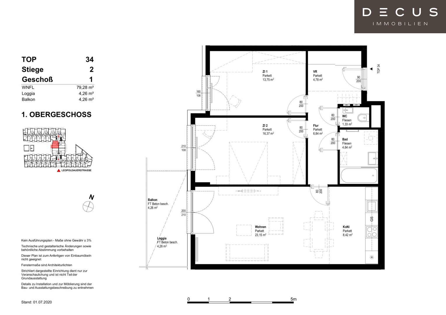
Objekt ID: 2010322
Preis: € 1.220.19
Nutzfläche: 79 m2
Gesamtfläche: 84 m2
Ziimmer insgesamt: 3
Schlafzimmer: 3
Badezimmer: 1
Miete/m2 €: 11.24
Miete (netto) €: 938.89
USt €: 110.93
Gesamtbelastung €: 1220.19
Nutzungsart: Wohnen
Provisionspflichtig: nein
Kaution: 3.660,57 €
HWB: 21,23 kWh/(m²*a)
HWB Klasse: A
FGEE: 0.78
E-Ausweis Gültig Bis:: 17.11.2030
Energieausweis Art: Bedarf
Anzahl Balkone: 1
Balkon/Terrassen - Fläche: 8
Beziehbar: ab sofort
Etage: 1. Etage
WC: 1
Balkon
Neubau
Personenaufzug
Parkett
Fußbodenheizung
Kabel/Sat-TV
offene Küche
Offene Küche
Tiefgarage
Flachdach
Ähnliche Objekte
Provisionsfrei: Renovierter 118m² Altbau-Ers...
€ 1.810.60
3
Schlafzimmer
1
Badezimmer
118 m2
Größe
April 25, 2026
Architektonisches Dachgeschossjuwel mit Terr...
€ 1.350
2
Schlafzimmer
1
Badezimmer
65 m2
Größe
April 25, 2026
Provisionsfrei: Hochwertig ausgestattetes Da...
€ 1.271.13
2
Schlafzimmer
1
Badezimmer
52 m2
Größe
April 24, 2026























