Objektbeschreibung
Neuwertige 243m² Büroeinheit im Gewerbepark Inzersdorf.
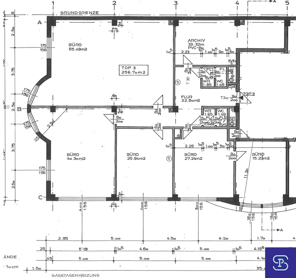
Das angebotene Büro befindet sich im 1. Stock (kein Lift) und besteht aus 5 Büroräumen, 1 gr. Archivraum mit Anschlüssen für Teeküche, Abstellraum sowie Sanitärräumlichkeiten,. Alle Räume sind von einem zentralen Vorraum begehbar.
Änderungswünsche wie Raumteiler o.ä. können nach Absprache berücksichtigt werden. Bei
Mehr lesen
Objekt ID: 2015376
Nutzfläche: 0 m2
Gesamtfläche: 242 m2
Ziimmer insgesamt: 5
Schlafzimmer: 5
Badezimmer: 0
Miete/m2 €: 4.96
Miete (netto) €: 1200
USt €: 303.22
Nutzungsart: Gewerbe
Provisionspflichtig: ja
HWB: 24,50 kWh/(m²*a)
HWB Klasse: C
FGEE: 1.02
Energieausweis Art: Bedarf
Beziehbar: sofort
Etage: 1. Etage / 1. Stock
WC: 2
Abstellräume: 1
Neubau
Etagenheizung
Gas
Teppich
Freiplatz
Teeküche











