Objektbeschreibung
ERSTBEZUG, Doppelhaushälfte in Untermauerbach in absoluter Grünruhelage! Haus 3A
+ Ziegelmassivbauweise
+ Eigengrund mit 2 Parkplätzen vor der Tür
+ Fussbodenheizung mittels effizienter Vaillant Erdwärmepumpe
+ Fussbodenkühlung mittels Erdwärmepumpe
+ Schlüsselfertig plus, inklusive Küche, Badezimmerausstattung und Zentralstaubsauger
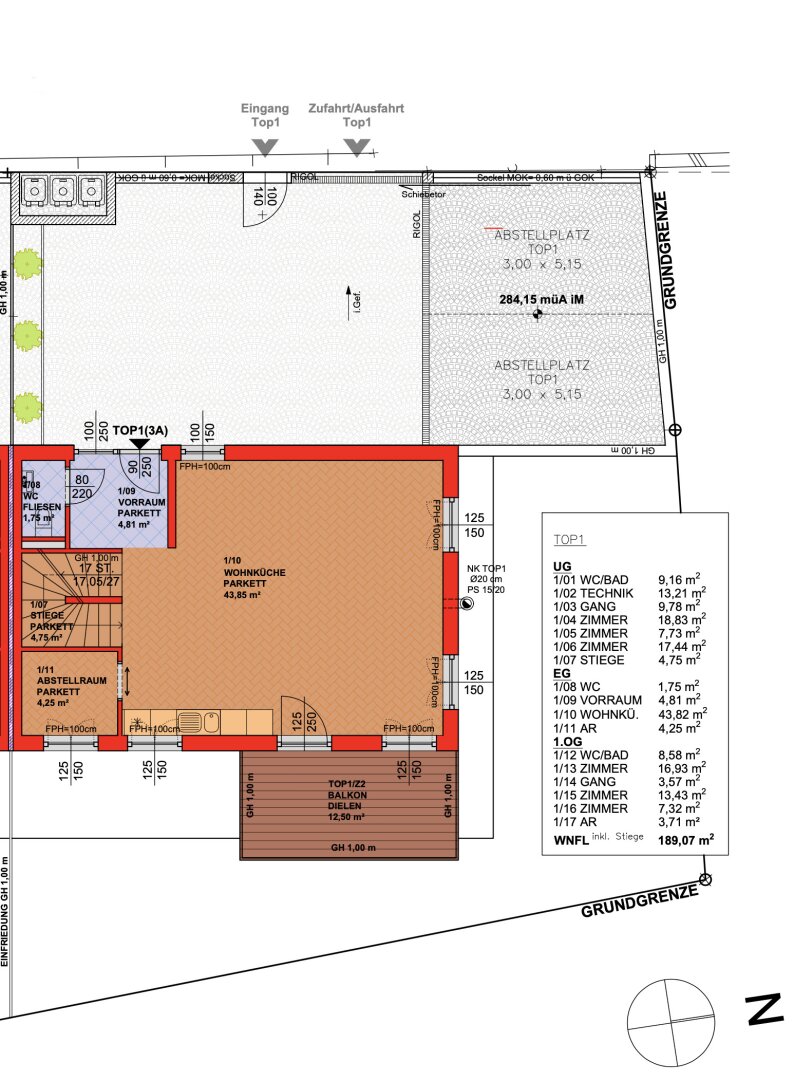
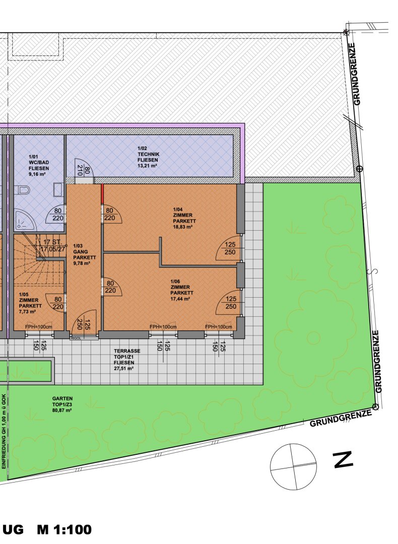
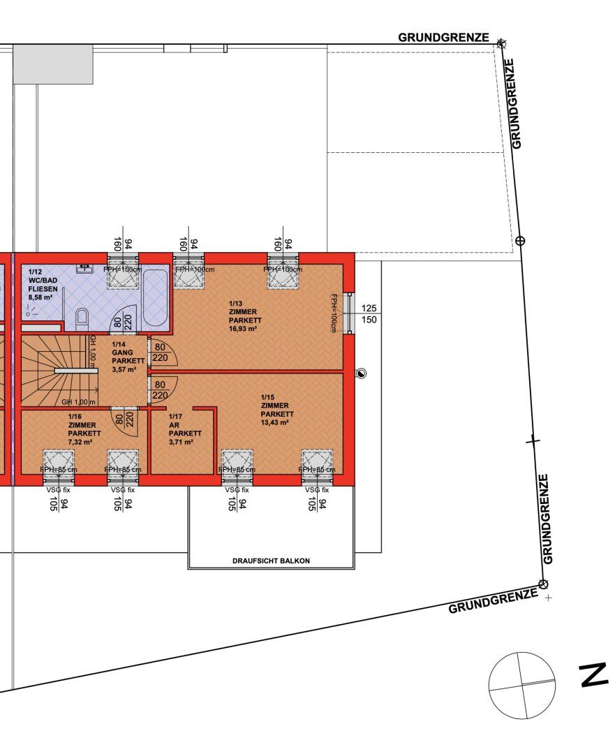
+ 5 Zimmer, 189,07 m² Wohnnutzfläche, 27,51 m² Terrasse, 12,50
Mehr lesen
Objekt ID: 2042745
Preis: € 799.000
Nutzfläche: 189 m2
Gesamtfläche: 0 m2
Ziimmer insgesamt: 5
Schlafzimmer: 5
Badezimmer: 2
Nutzungsart: Wohnen
Provisionspflichtig: ja
Provision: 3% des Kaufpreises zzgl. 20% USt.
HWB: 45,20 kWh/(m²*a)
HWB Klasse: B
FGEE: 0.78
E-Ausweis Gültig Bis:: 17.07.2032
Energieausweis Art: Bedarf
Anzahl Balkone: 1
Balkon/Terrassen - Fläche: 40
Beziehbar: sofort
WC: 3
Abstellräume: 1
Balkon
Neubau
Gäste-WC
Parkett
Bad mit Fenster
Fußbodenheizung
offene Küche
Abstellraum
Offene Küche
Rollläden
Freiplatz
vollerschlossen
Wasch-/Trockenraum
Gartennutzung
Neubaustandard
Erdwärme
Kabelkanäle
Mansarddach
Ähnliche Objekte
***ERSTBEZUGS-DOPPELHAUSHÄLFTE DIREKT AM WAS...
€ 600.000
4
Schlafzimmer
1
Badezimmer
102 m2
Größe
Oktober 24, 2025
***PURE IDYLLE! EXKLUSIVE HAUSHÄLFTE DIREKT ...
€ 500.000
4
Schlafzimmer
1
Badezimmer
102 m2
Größe
Oktober 24, 2025
ERSTBEZUG! Eigenheim mit 189 m2 in Ziegelmas...
€ 799.000
5
Schlafzimmer
2
Badezimmer
189 m2
Größe
Oktober 22, 2025









