Objektbeschreibung
Zwei Grundstücke, viele Möglichkeiten:
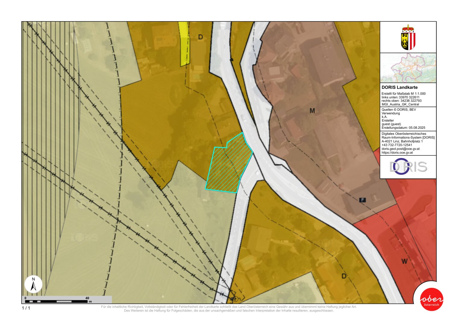
Zum Kaufpreis von € 250.000,- erhalten Sie nicht nur ein Wohnhaus auf einem Grundstück mit ca. 585 m², sondern auch ein gegenüberliegendes, zusätzliches Grundstück mit ca. 537 m², auf dem sich zwei Garagen befinden. Ob als Parkfläche, Werkstatt oder zusätzlicher Stauraum – hier eröffnen sich
Mehr lesen
Objekt ID: 2052476
Preis: € 250.000
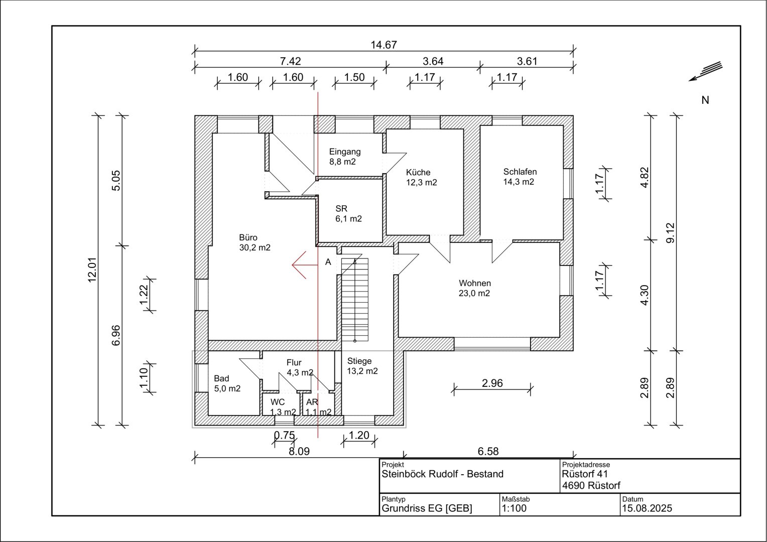
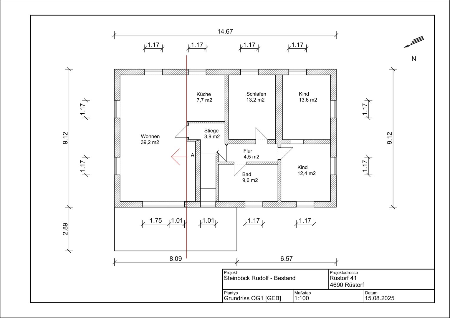
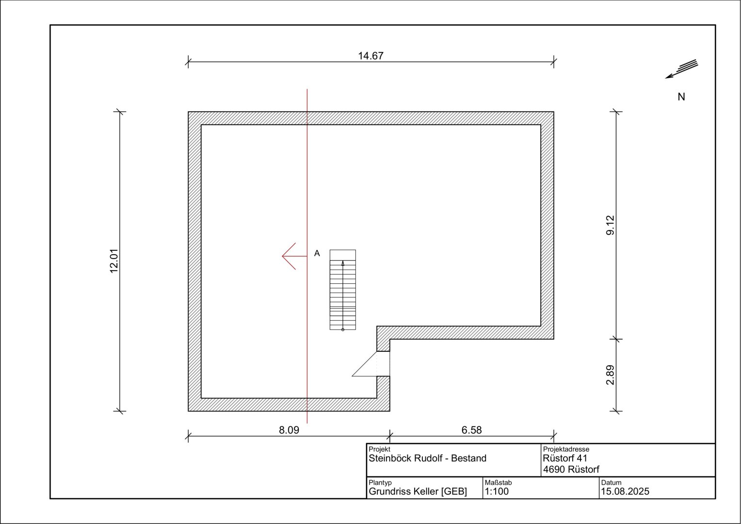
Nutzfläche: 224 m2
Gesamtfläche: 1.286 m2
Ziimmer insgesamt: 7
Schlafzimmer: 7
Badezimmer: 2
Nutzungsart: Wohnen
Provisionspflichtig: ja
Provision: 9.000,00 € inkl. 20% USt.
HWB: 161,90 kWh/(m²*a)
HWB Klasse: E
FGEE: 2.37
E-Ausweis Gültig Bis:: 15.08.2035
Energieausweis Art: Bedarf
Anzahl Balkone: 1
WC: 2
Balkon
Einbauküche
Altbau
teilmöbliert
Zentralheizung
Öl
Garage
Satteldach







