Objektbeschreibung
Lage
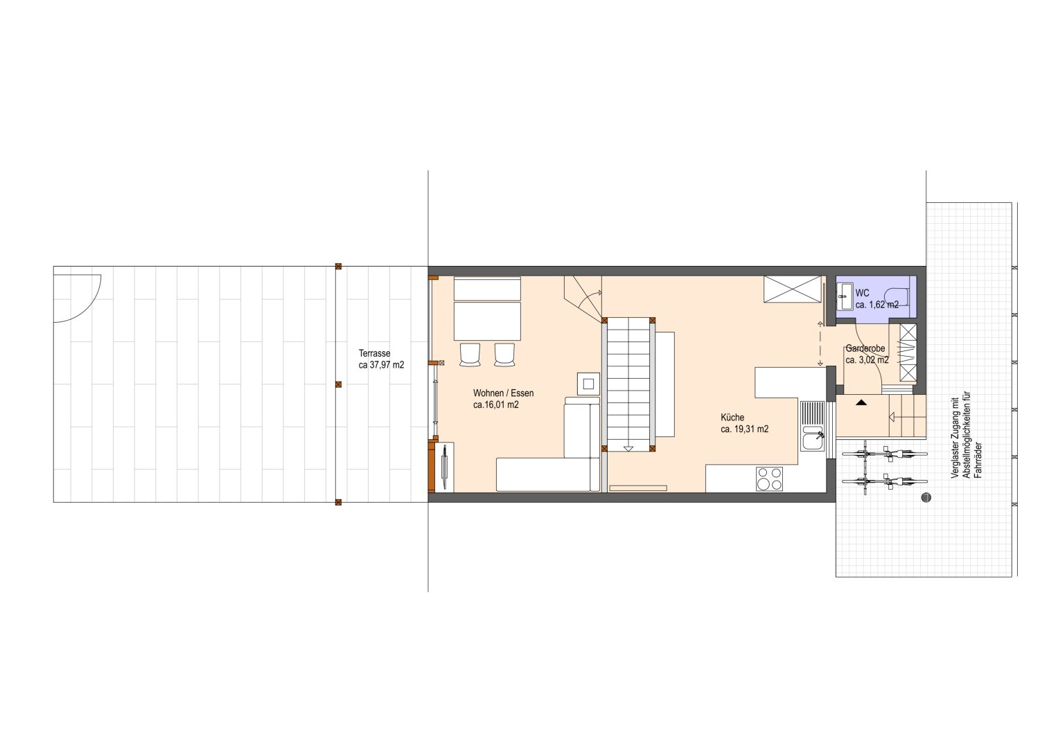
Das Reihenhaus liegt in Bregenz-Vorkloster in angenehmer, ruhiger Wohnlage nahe dem Mehrerauerwald und des Bodensees. In wenigen Minuten erreichen Sie mit dem Fahrrad das Seeufer oder das Stadtzentrum. Schulen, Kindergärten, Einkaufsmöglichkeiten, Apotheken und ärztliche Versorgung befinden sich in der Umgebung. Der Bahnhof Riedenburg ist fußläufig in etwa 7 Minuten
Mehr lesen
Objekt ID: 2053153
Preis: € 598.000
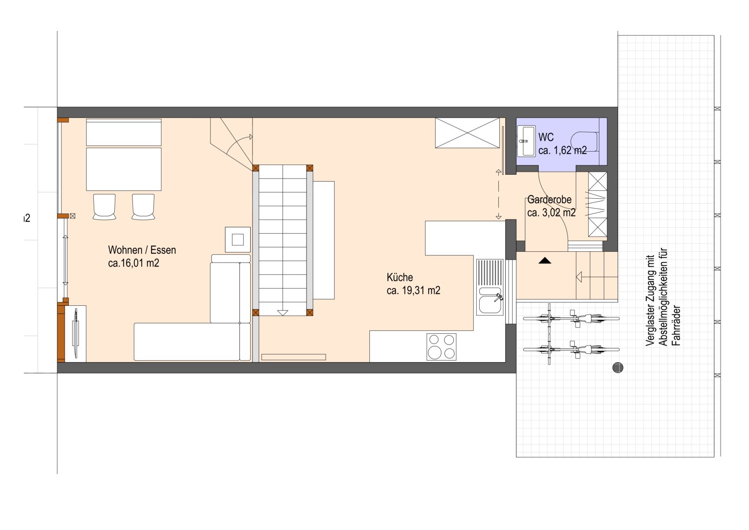
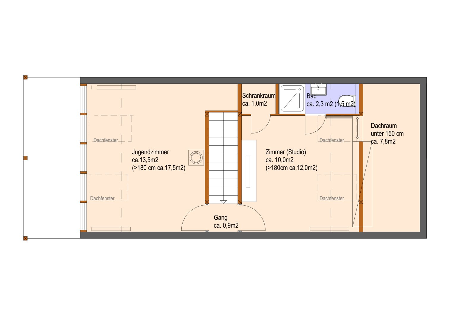
Nutzfläche: 128 m2
Gesamtfläche: 0 m2
Ziimmer insgesamt: 5
Schlafzimmer: 5
Badezimmer: 1
Nutzungsart: Wohnen
Provisionspflichtig: ja
Provision: 3% des Kaufpreises zzgl. 20% USt.
HWB: 59 kWh/(m²*a)
HWB Klasse: C
FGEE: 1.36
E-Ausweis Gültig Bis:: 27.11.2030
Energieausweis Art: Bedarf
Anzahl Balkone: 1
Balkon/Terrassen - Fläche: 7
Beziehbar: sofort
WC: 2
Balkon
Einbauküche
Gäste-WC
Bad mit Fenster
Fußbodenheizung
Rollläden
Carport
Dielen
Holz-Hackschnitzel
Ähnliche Objekte
Günstige Wohnung BREGENZ, zentral zum ÖBB-Ba...
€ 169.000
2
Schlafzimmer
1
Badezimmer
50 m2
Größe
Januar 8, 2025











