Erweiterte Suche
Andere Eigenschaften
Suchagent aktivieren
Exklusive Anzeigen

Bregenz | Reihenhaus | Ruhiges Wohnen am Bodensee

€ 598.000,00

,

128.425 Zimmer
zu Favoriten hinzufügen
teilen
Suchergebnisse

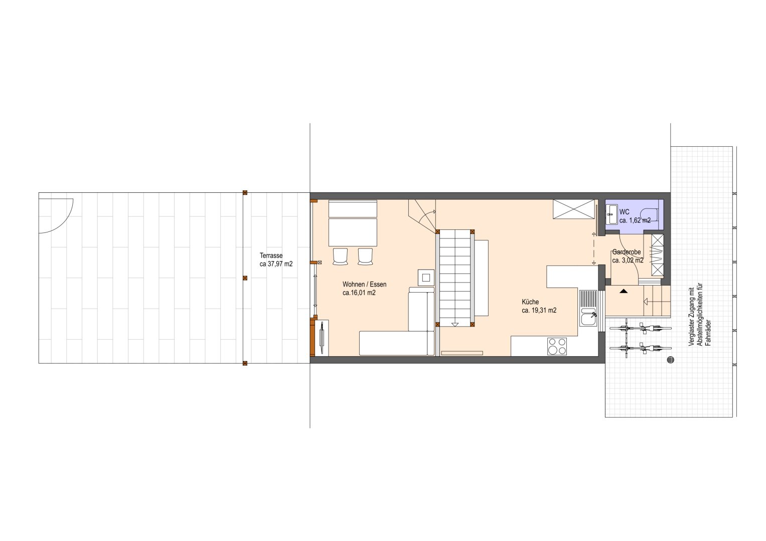
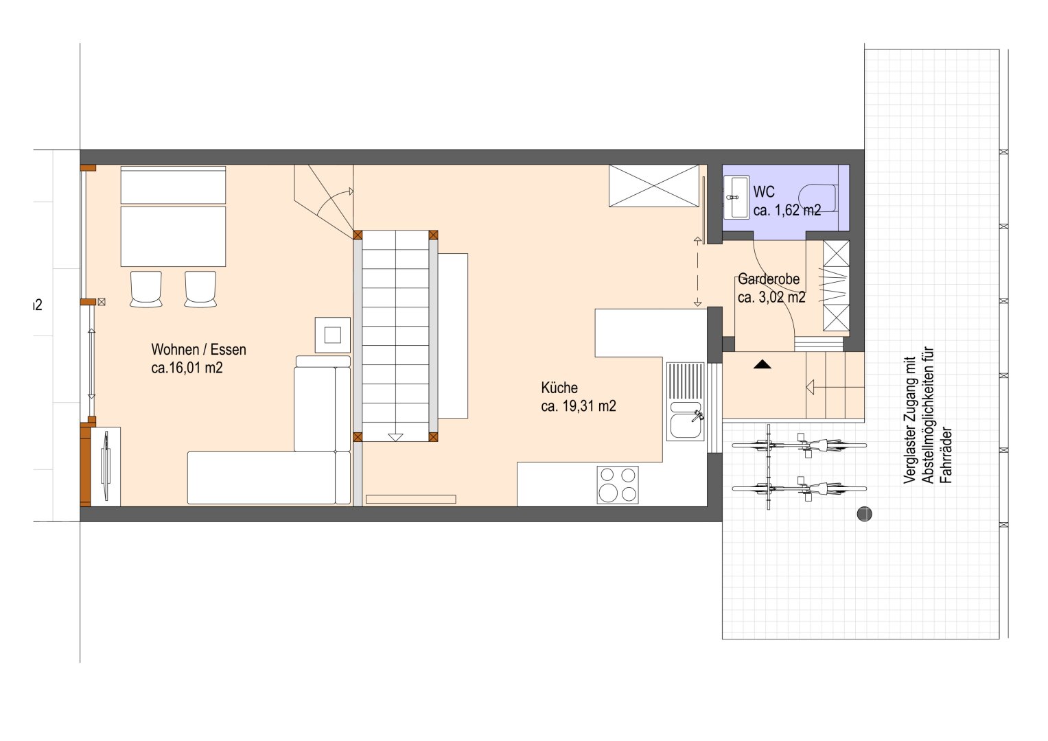
Objektbeschreibung

Lage

Das Reihenhaus liegt in Bregenz-Vorkloster in angenehmer, ruhiger Wohnlage nahe dem Mehrerauerwald und des Bodensees. In wenigen Minuten erreichen Sie mit dem Fahrrad das Seeufer oder das Stadtzentrum. Schulen, Kindergärten, Einkaufsmöglichkeiten, Apotheken und ärztliche Versorgung befinden sich in der Umgebung. Der Bahnhof Riedenburg ist fußläufig in etwa 7 Minuten
Mehr lesen

Ort:
Bezirk:
Bundesland:
PLZ: 6900
Land: Österreich
Objekt ID: 2053180
Preis: € 598.000
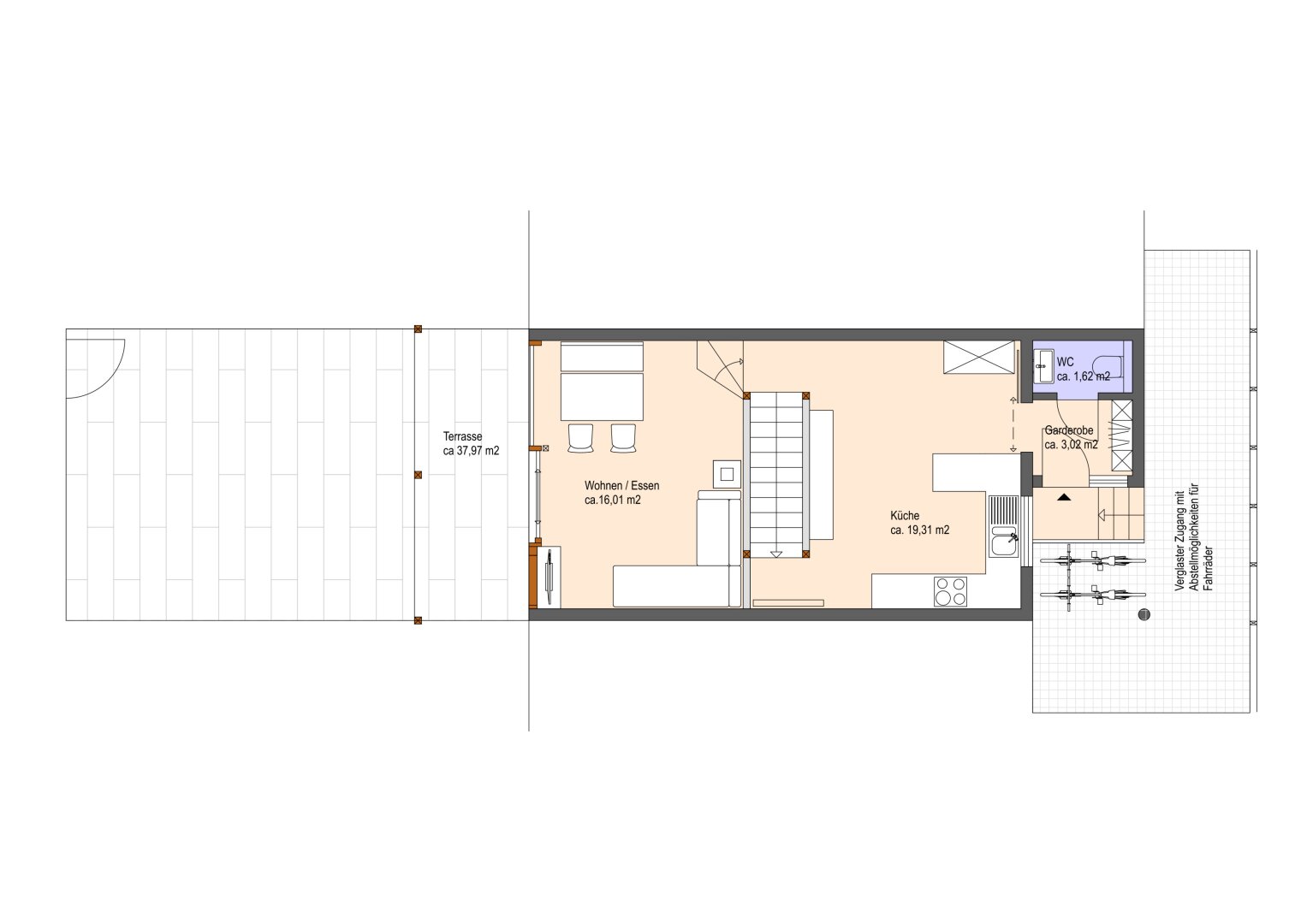
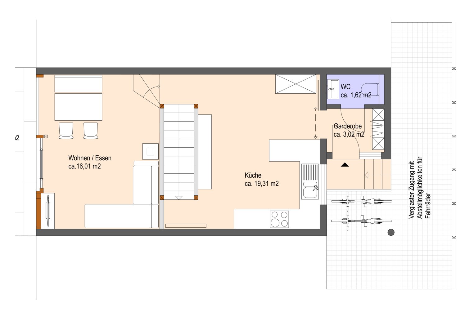
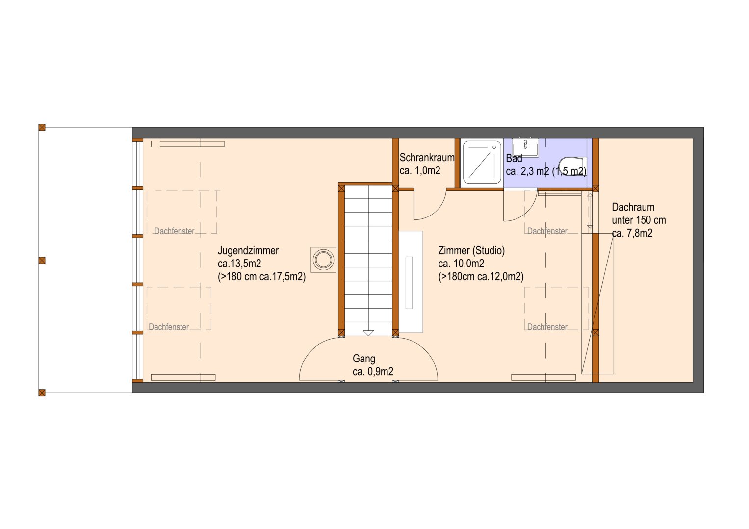
Nutzfläche: 128 m2
Gesamtfläche: 0 m2
Ziimmer insgesamt: 5
Schlafzimmer: 5
Badezimmer: 1
Nutzungsart: Wohnen
Provisionspflichtig: ja
Provision: 3% des Kaufpreises zzgl. 20% USt.
HWB: 59 kWh/(m²*a)
HWB Klasse: C
FGEE: 1.36
E-Ausweis Gültig Bis:: 27.11.2030
Energieausweis Art: Bedarf
Anzahl Balkone: 1
Balkon/Terrassen - Fläche: 45
Beziehbar: sofort
WC: 2
Balkon
Einbauküche
Gäste-WC
Bad mit Fenster
Fußbodenheizung
Rollläden
Carport
Dielen
Holz-Hackschnitzel

WÄLDERIMMO GmbH
Magnus Hagspiel

Kontaktaufnahme









    • Preisinformation
      Objektpreis598.000,00 €

    Vergleichen