Objektbeschreibung
Rohdachboden mit Ausbaupotenzial in Linz-Ebelsberg – Nähe Schloss Ebelsberg
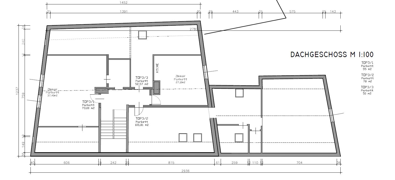
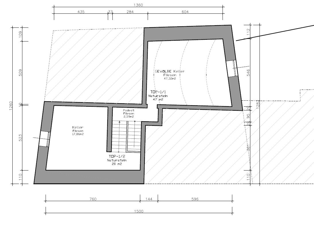
Zum Verkauf steht ein großzügiger Rohdachboden mit ca. 283 m², ideal für den Ausbau zu modernen Wohnungen oder individuellen Projekten. Das Hauptgebäude, in dem sich der Dachboden befindet, wurde ursprünglich um 1940 errichtet und seither regelmäßig modernisiert.
Lage
Der Rohdachboden punktet
Mehr lesen
Objekt ID: 2053510
Preis: € 289.000
Nutzfläche: 0 m2
Gesamtfläche: 283 m2
Ziimmer insgesamt: 0
Schlafzimmer: 0
Badezimmer: 0
Nutzungsart: Anlage
Provisionspflichtig: ja
Provision: 3% des Kaufpreises zzgl. 20% USt.
HWB: 121 kWh/(m²*a)
HWB Klasse: D
FGEE: 1.95
E-Ausweis Gültig Bis:: 31.10.2034
Energieausweis Art: Bedarf
Gas
Fernheizung
Ähnliche Objekte
Traumhafte, vermietete 3-Zimmer-Wohnung mit ...
€ 316.800
3
Schlafzimmer
1
Badezimmer
49 m2
Größe
Dezember 13, 2025
Exklusives Penthouse über den Dächern von Li...
€ 1.699.000
4
Schlafzimmer
2
Badezimmer
216 m2
Größe
Dezember 9, 2025
Moderne 3-Zimmer-Wohnung mit Balkon zu kaufe...
€ 299.000
3
Schlafzimmer
1
Badezimmer
49 m2
Größe
Dezember 9, 2025










