Objektbeschreibung
Das Projekt überzeugt durch seine ruhige, aber bestens angebundene Lage im beliebten 23. Bezirk. Nur wenige Minuten zu Fuß trennen Sie von S-Bahn- und Busstationen in Liesing, wodurch sowohl die Wiener Innenstadt als auch das Umland schnell erreichbar sind. Einkaufsmöglichkeiten wie das Riverside-Center, Supermärkte und Lokale befinden sich in unmittelbarer
Mehr lesen
Objekt ID: 2060828
Preis: € 593.180
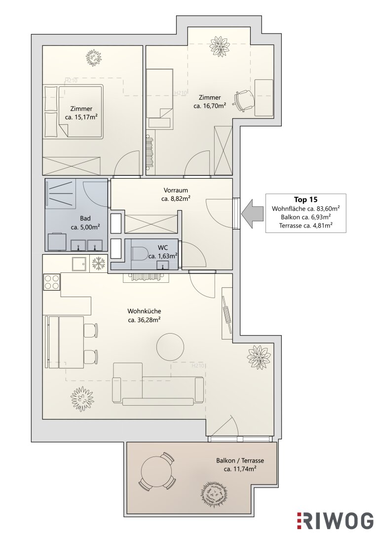
Nutzfläche: 84 m2
Gesamtfläche: 0 m2
Ziimmer insgesamt: 3
Schlafzimmer: 3
Badezimmer: 1
Nutzungsart: Anlage
Provisionspflichtig: ja
Provision: 3% des Kaufpreises zzgl. 20% USt.
HWB: 24 kWh/(m²*a)
HWB Klasse: A
FGEE: 0.73
E-Ausweis Gültig Bis:: 09.08.2032
Energieausweis Art: Bedarf
Anzahl Balkone: 1
Balkon/Terrassen - Fläche: 11
Etage: 1. DG
WC: 1
Balkon
barrierefrei
Neubau
Personenaufzug
Parkett
Dusche
Fußbodenheizung
Kabel/Sat-TV
Fahrradraum
Luft-Wärmepumpe
Massiv
Massivbauweise
Gartennutzung
schlüsselfertig mit Keller
seniorengerecht
Tiefgarage
Ähnliche Objekte
Exklusive Dachgeschosswohnung mit 2 Terrasse...
€ 889.000
3
Schlafzimmer
2
Badezimmer
119 m2
Größe
Mai 3, 2026
EARLY BIRD! Die ersten 3 Wohnungen zum Sensa...
€ 295.920
3
Schlafzimmer
1
Badezimmer
56 m2
Größe
Mai 3, 2026
***Sanierungsbedürftige 2,5 Zimmer-Wohnung n...
€ 214.000
2
Schlafzimmer
1
Badezimmer
60 m2
Größe
Mai 3, 2026













