Objektbeschreibung
Das Projekt überzeugt durch seine ruhige, aber bestens angebundene Lage im beliebten 23. Bezirk. Nur wenige Minuten zu Fuß trennen Sie von S-Bahn- und Busstationen in Liesing, wodurch sowohl die Wiener Innenstadt als auch das Umland schnell erreichbar sind. Einkaufsmöglichkeiten wie das Riverside-Center, Supermärkte und Lokale befinden sich in unmittelbarer
Mehr lesen
Objekt ID: 2060956
Preis: € 328.775
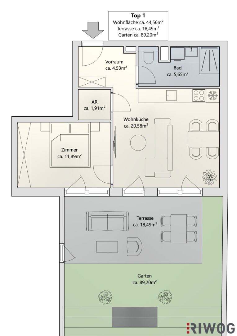
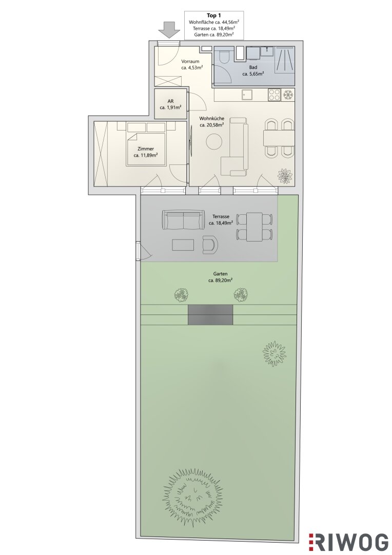
Nutzfläche: 45 m2
Gesamtfläche: 0 m2
Ziimmer insgesamt: 2
Schlafzimmer: 2
Badezimmer: 1
Nutzungsart: Anlage
Provisionspflichtig: ja
Provision: 3% des Kaufpreises zzgl. 20% USt.
HWB: 24 kWh/(m²*a)
HWB Klasse: A
FGEE: 0.73
E-Ausweis Gültig Bis:: 09.08.2032
Energieausweis Art: Bedarf
Balkon/Terrassen - Fläche: 18
Etage: EG
WC: 1
barrierefrei
Neubau
Personenaufzug
Parkett
Dusche
Fußbodenheizung
Kabel/Sat-TV
Fahrradraum
Luft-Wärmepumpe
Massiv
Massivbauweise
Gartennutzung
schlüsselfertig mit Keller
seniorengerecht
Tiefgarage
Ähnliche Objekte
EARLY BIRD! Eigengartenwohnung zum SENSATION...
€ 575.550
4
Schlafzimmer
2
Badezimmer
103 m2
Größe
Mai 3, 2026
EARLY BIRD! Die ersten 3 Wohnungen zum SENSA...
€ 229.050
2
Schlafzimmer
1
Badezimmer
43 m2
Größe
Mai 3, 2026
Provisionsfrei! Hochwertige 4 Zimmer + 2 Bäd...
€ 448.600
4
Schlafzimmer
2
Badezimmer
76 m2
Größe
Mai 3, 2026












