Objektbeschreibung
PROVISIONSFREI! NEUWERTIGES EINFAMILIENHAUS MIT GROSSEM GARTEN IN RUHELAGE
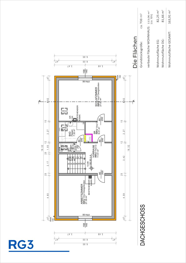
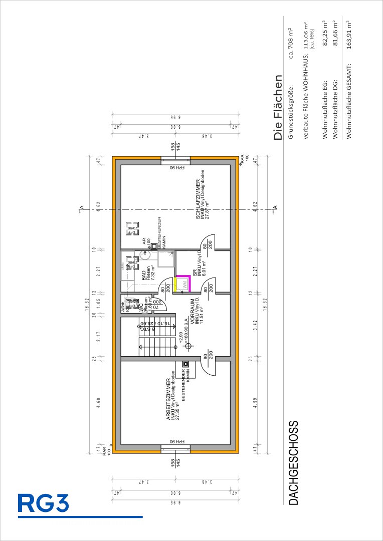
Dieses Haus ist kein Neubau von der Stange, sondern ein Zuhause, das mit viel Gefühl und Qualität erneuert wurde. Auf rund 164 m² Wohnfläche und einem Grundstück von 702 m² bietet es Platz, Luft und ein gutes Wohngefühl.
Das Gebäude wurde 1994 errichtet
Mehr lesen
Objekt ID: 2061743
Preis: € 485.000
Nutzfläche: 164 m2
Gesamtfläche: 702 m2
Ziimmer insgesamt: 4
Schlafzimmer: 4
Badezimmer: 2
Miete/m2 €: 2958.94
Nutzungsart: Wohnen
HWB: 75 kWh/(m²*a)
HWB Klasse: C
FGEE: 0.87
E-Ausweis Gültig Bis:: 30.06.2035
Energieausweis Art: Bedarf
Beziehbar: sofort
WC: 2
Abstellräume: 1
Neubau
Gäste-WC
Bad mit Fenster
Fußbodenheizung
Kabel/Sat-TV
Rollläden
Freiplatz
Luft-Wärmepumpe
Massiv
Massivbauweise
vollerschlossen
DV-Verkabelung
Satteldach
Fertigparkett






















