Objektbeschreibung
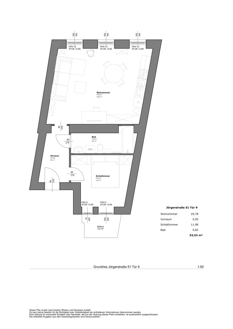
Zum Verkauf gelangt diese ca. 56m² große 2-Zimmer Altbauwohnung mit Balkon in sehr guter Lage des 17. Wiener Gemeindebezirks.
***ZUR VEREINBARUNG eines BESICHTIGUNGSTERMINS lassen SIE uns BITTE JEDENFALLS eine schriftliche ANFRAGE am besten gleich mit Ihren TERMINWÜNSCHEN zukommen! (wir antworten verlässlich am selben Tag!)***
Raumaufteilung:
* Vorraum
* Badezimmer mit WC
Mehr lesen
Objekt ID: 2067491
Preis: € 299.000
Nutzfläche: 56 m2
Gesamtfläche: 0 m2
Ziimmer insgesamt: 2
Schlafzimmer: 2
Badezimmer: 1
Nutzungsart: Wohnen
Provisionspflichtig: ja
Provision: 3% des Kaufpreises zzgl. 20% USt.
HWB: 95,62 kWh/(m²*a)
FGEE: 1.85
Energieausweis Art: Bedarf
Anzahl Balkone: 1
Balkon/Terrassen - Fläche: 4
Beziehbar: 01.03.2026
Etage: 2. Etage
WC: 1
Balkon
Einbauküche
Personenaufzug
Altbau
Parkett
Badewanne
offene Küche
Abstellraum
Offene Küche
Ähnliche Objekte
Anleger aufgepasst! DG-Neubau in Alsergrund ...
€ 710.000
2
Schlafzimmer
1
Badezimmer
59 m2
Größe
März 14, 2026
Penthouse mit einzigartigem Wienblick in 109...
€ 1.600.000
3
Schlafzimmer
3
Badezimmer
125 m2
Größe
März 14, 2026
Exklusive DG-Wohnung mit einzigartigem 360 G...
€ 1.200.000
3
Schlafzimmer
3
Badezimmer
103 m2
Größe
März 14, 2026




















