Objektbeschreibung
Altbaucharme trifft Stadtleben – Eigentumswohnungen in Wien Meidling (Ehrenfelsgasse 3)
In ruhiger, urbaner Lage des 12. Bezirks gelangt ein gepflegtes Altbauhaus in der Ehrenfelsgasse 3 zum Verkauf von 8 attraktiven Eigentumswohnungen. Das charmante Altbauhaus vereint klassische Altbauarchitektur mit dem Potenzial zur individuellen Modernisierung und bietet eine ausgezeichnete Gelegenheit für Eigennutzer wie auch Anleger.
Mehr lesen
Objekt ID: 2067820
Preis: € 249.000
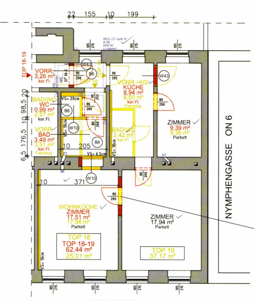
Nutzfläche: 62 m2
Gesamtfläche: 62 m2
Ziimmer insgesamt: 3
Schlafzimmer: 3
Badezimmer: 1
Nutzungsart: Wohnen
Provisionspflichtig: ja
Provision: 3% des Kaufpreises zzgl. 20% USt.
HWB: 109,13 kWh/(m²*a)
HWB Klasse: D
FGEE: 2.39
Energieausweis Art: Bedarf
Etage: 1. Etage / 1. Liftstock
WC: 1
Einbauküche
WG-geeignet
Personenaufzug
Altbau
Gas
Parkett
Bad mit Fenster
Zentralheizung
Abstellraum
Massiv
Massivbauweise
schlüsselfertig mit Keller
Ähnliche Objekte
66m² 3-Zimmer Wohnung I Alte Donau I Einbauk...
€ 490.000
3
Schlafzimmer
1
Badezimmer
66 m2
Größe
Dezember 18, 2025
3 ZIMMER, BALKON MÖGLICH // komplett sanieru...
€ 215.000
3
Schlafzimmer
1
Badezimmer
59 m2
Größe
Dezember 18, 2025







