Objektbeschreibung
1180 WIEN – Martinstrasse 41-43
Eigentums-/Vorsorgewohnungen
Es wurden Neubau- und Dachwohnungen errichtet und die Altbauwohnungen generalsaniert. Als Generalunternehmer fungiert die STRABAG AG.
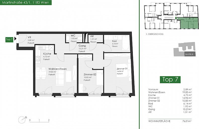
TOP 7 Neubau (1 Stock):
Diese sehr gut aufgeteilte 3 Zimmerwohnung hat eine Wohnfläche von ca. 76,01 m² und befindet sich im 1.Liftstock
Raumaufteilung:
* 1 Wohn-Esszimmer mit kleinem Balkon
Mehr lesen
Dokumente
Objekt ID: 2069217
Preis: € 499.000
Nutzfläche: 76 m2
Gesamtfläche: 0 m2
Ziimmer insgesamt: 3
Schlafzimmer: 3
Badezimmer: 1
Nutzungsart: Wohnen
Provisionspflichtig: ja
Provision: 3% des Kaufpreises zzgl. 20% USt.
HWB: 29,80 kWh/(m²*a)
FGEE: 0.8
Energieausweis Art: Bedarf
Etage: 1. Etage
WC: 1
Abstellräume: 1
barrierefrei
Neubau
Personenaufzug
Dusche
Luft-Wärmepumpe
Massiv
Massivbauweise
Fertigparkett
Ähnliche Objekte
GARTENTRAUM – RUHELAGE TRIFFT WOHNGENU...
€ 269.000
2
Schlafzimmer
1
Badezimmer
47 m2
Größe
März 27, 2026
3-Zimmer Hofwohnung mit 4,90 m² Terrasse ...
€ 349.000
3
Schlafzimmer
1
Badezimmer
59 m2
Größe
März 27, 2026
3 Zimmer Hofruhelage mit Terrasse – Ei...
€ 355.000
3
Schlafzimmer
1
Badezimmer
59 m2
Größe
März 27, 2026

















