Erweiterte Suche
Andere Eigenschaften
Suchagent aktivieren
Exklusive Anzeigen

Gemütliche Eigentumswohnung in ruhiger Lage von Traismauer

€ 126.500,00

,

733 Zimmer
zu Favoriten hinzufügen
teilen
Suchergebnisse

Objektbeschreibung

Eigentumswohnung in ruhiger Lage von Traismauer

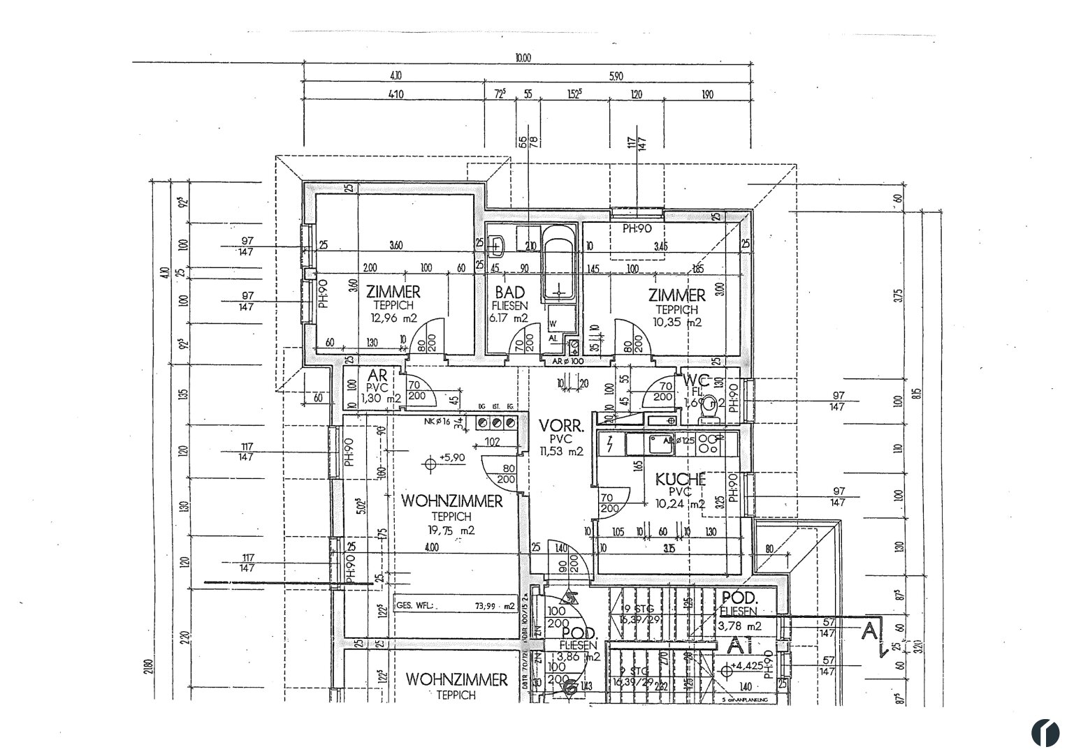
Diese gepflegte 3-Zimmer-Wohnung befindet sich in einem Wohnhaus aus dem Jahr 1997 in ruhiger, hofseitiger Lage von Traismauer. Die Wohnung liegt im 2. Obergeschoss eines Mehrparteienhauses (leider kein Lift vorhanden).

Mit einer Wohnfläche von rund 73 m² bietet die Wohnung eine gut durchdachte Raumaufteilung.
Mehr lesen

Bezirk:
Bundesland:
PLZ: 3133
Land: Österreich
Objekt ID: 2077719
Preis: € 126.500
Nutzfläche: 73 m2
Gesamtfläche: 0 m2
Ziimmer insgesamt: 3
Schlafzimmer: 3
Badezimmer: 1
Betriebskosten €: 312.31
Nutzungsart: Wohnen
Provisionspflichtig: ja
Provision: 4.554,00 € inkl. 20% USt.
HWB: 78,60 kWh/(m²*a)
HWB Klasse: C
FGEE: 1.62
E-Ausweis Gültig Bis:: 16.10.2034
Energieausweis Art: Bedarf
Beziehbar: ab sofort
Etage: 2. Etage
WC: 1
Abstellräume: 1
Neubau
Einbauküche
Gas
Bad mit Fenster
Fahrradraum
Zentralheizung
Laminat
Carport
Massiv
Massivbauweise
Wasch-/Trockenraum
Gartennutzung
Wohnungsplan
Wohnungsplan

Ähnliche Objekte

vergleichen
2ySBYnhov6a4pb0bqj8x5w

PERFEKTES ZUHAUSE IM HERZEN VON TRAISMAUER! ...

€ 99.000
3
Schlafzimmer
1
Badezimmer
74 m2
Größe
August 7, 2025

Immobilien86 KG
Martin Schildberger

Kontaktaufnahme









    • Preisinformation
      Betriebskosten312,31 €
      Objektpreis126.500,00 €

    Vergleichen