Objektbeschreibung
Willkommen in Ihrem Traumhaus in der idyllischen Doppelhaushälfte in 2112 Lerchenau, Niederösterreich!
Das attraktive Angebot zu einem Kaufpreis von 489.000,00 € lässt keine Wünsche offen. Mit einer großzügigen Wohnfläche von 131 m² und einem durchdachten Raumkonzept bietet dieses Erstbezug-Haus nicht nur Platz für die gesamte Familie, sondern auch eine Vielzahl
Mehr lesen
Objekt ID: 2078603
Preis: € 489.000
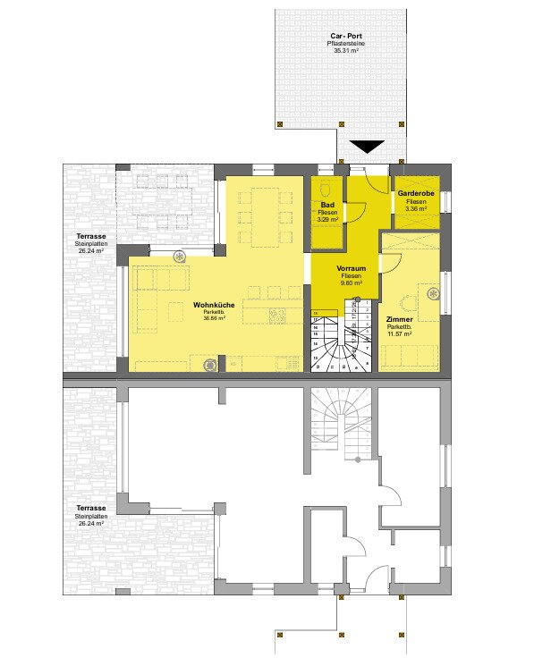
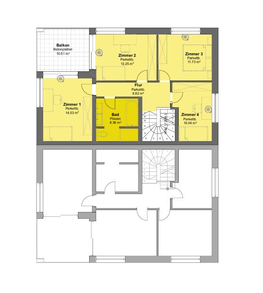
Nutzfläche: 131 m2
Gesamtfläche: 400 m2
Ziimmer insgesamt: 6
Schlafzimmer: 6
Badezimmer: 2
Miete/m2 €: 3722.59
Nutzungsart: Wohnen
HWB: 32 kWh/(m²*a)
HWB Klasse: B
FGEE: 0.69
E-Ausweis Gültig Bis:: 26.06.2033
Energieausweis Art: Bedarf
Anzahl Balkone: 1
Balkon/Terrassen - Fläche: 30
Beziehbar: Ende 2025/Anfang 2026
WC: 2
Abstellräume: 1
Balkon
Neubau
Gäste-WC
Badewanne
Fußbodenheizung
Freiplatz
Luft-Wärmepumpe
Massiv
Massivbauweise
vollerschlossen
Flachdach
Niedrigenergiehaus
Ausbauhaus








