Objektbeschreibung
KNITTELFELD: NEU RENOVIERTE STADTWOHNUNG MIT WEITBLICK IN ZENTRALER LAGE – JETZT KAUFEN!
Objektbeschreibung:
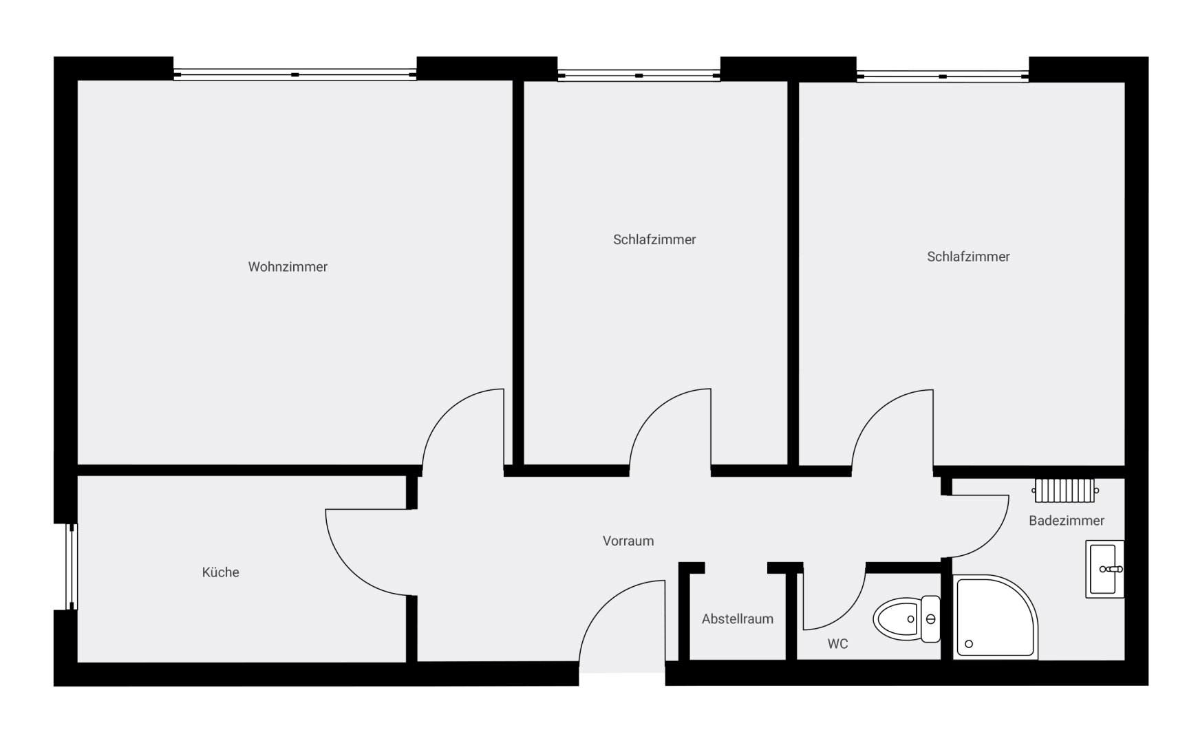
Zum Verkauf steht eine helle, neu renovierte Stadtwohnung in zentraler Lage von Knittelfeld.
Die Wohnung befindet sich im 11. Stock eines gepflegten Mehrparteienhauses mit Lift und bietet auf rund 68 m² Wohnfläche ein modernes Zuhause
Mehr lesen
Objekt ID: 2091213
Preis: € 89.000
Nutzfläche: 68 m2
Gesamtfläche: 0 m2
Ziimmer insgesamt: 3
Schlafzimmer: 3
Badezimmer: 0
Nutzungsart: Wohnen
Provisionspflichtig: ja
Provision: 3% des Kaufpreises zzgl. 20% USt.
HWB: 48,40 kWh/(m²*a)
HWB Klasse: C
FGEE: 1.05
E-Ausweis Gültig Bis:: 22.01.2030
Energieausweis Art: Bedarf
Etage: 11. Etage
Personenaufzug
Gäste-WC
Dusche
Laminat
Fernheizung
Fernwärme




















