Objektbeschreibung
Büro mit Potenzial zur Eigentumswohnung in Wels zu kaufen – Bieterverfahren
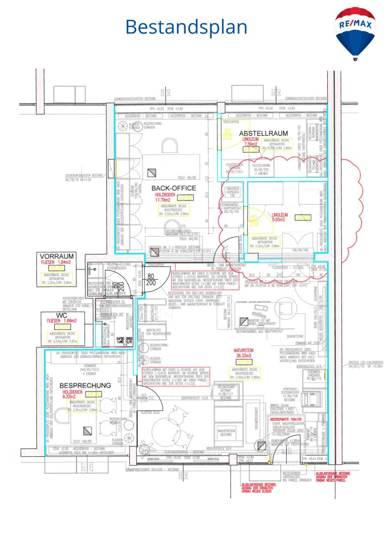
Zum Verkauf steht eine Eigentumswohnung im Erdgeschoss eines gepflegten Mehrparteienhauses in zentraler Lage von Wels.
Die Einheit befindet sich in der Linzer Straße 155 und weist eine Wohnfläche von ca. 85 m² auf. Derzeit wird das Objekt als Büro
Mehr lesen
Dokumente
Objekt ID: 2092490
Preis: € 49.000
Nutzfläche: 85 m2
Gesamtfläche: 0 m2
Ziimmer insgesamt: 3
Schlafzimmer: 3
Badezimmer: 0
Nutzungsart: Gewerbe
Provisionspflichtig: ja
Provision: 3% des Kaufpreises zzgl. 20% USt.
HWB: 173 kWh/(m²*a)
HWB Klasse: E
FGEE: 1.58
E-Ausweis Gültig Bis:: 06.01.2030
Energieausweis Art: Bedarf
WC: 1
Fernheizung
Ähnliche Objekte
Hochwertige 4-Zimmer Neubauwohnung inkl. ver...
€ 419.000
4
Schlafzimmer
1
Badezimmer
96 m2
Größe
Oktober 30, 2025









