Objektbeschreibung
Gewerbeobjekt mit Umbaumöglichkeit zur Eigentumswohnung in Wels zu kaufen – Bieterverfahren
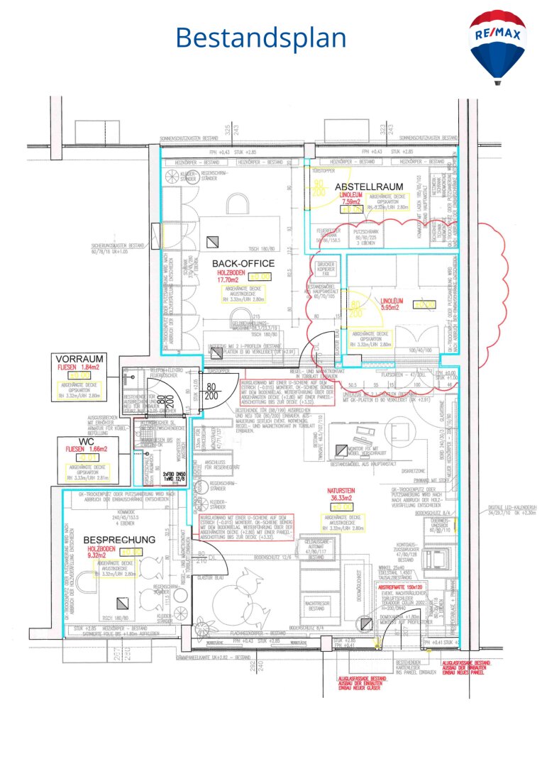
Zum Verkauf steht ein vielseitig nutzbares Gewerbeobjekt im Erdgeschoss eines gepflegten Mehrparteienhauses in zentraler Lage von Wels. Die Einheit befindet sich in der Linzer Straße 155 und weist eine Nutzfläche von ca. 85 m² auf.
Derzeit wird das Objekt
Mehr lesen
Dokumente
Objekt ID: 2093781
Preis: € 49.000
Nutzfläche: 0 m2
Gesamtfläche: 85 m2
Ziimmer insgesamt: 3
Schlafzimmer: 3
Badezimmer: 0
Nutzungsart: Gewerbe
Provisionspflichtig: ja
Provision: 3% des Kaufpreises zzgl. 20% USt.
HWB: 173 kWh/(m²*a)
HWB Klasse: E
FGEE: 1.58
E-Ausweis Gültig Bis:: 06.01.2030
Energieausweis Art: Bedarf
WC: 1
Fernheizung









