Objektbeschreibung
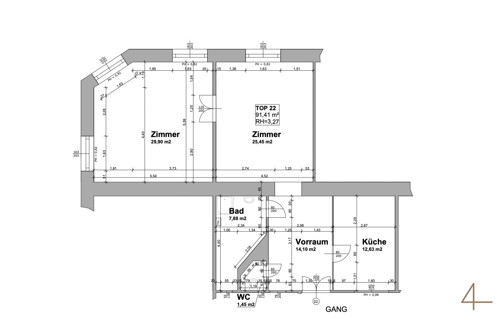
Diese charmante Altbauwohnung mit rund 91 m² Wohnfläche begeistert durch ihren klassischen Wiener Charakter und die sonnige West-Ausrichtung. Originaler Fischgrätparkett, elegante Flügeltüren und gut erhaltene Kastenfenster verleihen ihr zeitlose Eleganz. Die helle Eckwohnung im gepflegten Gründerzeithaus bietet viel Potenzial, um mit behutsamer Modernisierung individuellen Wohnkomfort zu schaffen. Die U3-Station Kardinal-Nagl-Platz sowie zahlreiche Einkaufsmöglichkeiten und Lokale sind nur wenige Gehminuten entfernt.
Kurzinfo Ausführung
Mehr lesen
Objekt ID: 2094584
Preis:  € 475.000 
Nutzfläche: 91 m2
Gesamtfläche: 0 m2
Ziimmer insgesamt: 2
Schlafzimmer: 2
Badezimmer: 1
Nutzungsart: Wohnen
Provisionspflichtig: ja
Provision: 3% des Kaufpreises zzgl. 20% USt.
HWB: 97,44 kWh/(m²*a)
HWB Klasse: D
E-Ausweis Gültig Bis:: 11.02.2020
Energieausweis Art: Bedarf
WC: 1
Einbauküche
Personenaufzug
Altbau
Gas
Parkett
Bad mit Fenster
Fahrradraum
Räume veränderbar
Ofenheizung
Ähnliche Objekte
NEUBAU-ERSTBEZUG: Sonnige Balkonwohnung R...
 € 295.000 
2
Schlafzimmer
1
Badezimmer
58 m2
Größe
 Oktober 31, 2025






