Objektbeschreibung
Liebe Wohnungssuchende,
Wir freuen uns über Ihr Interesse an dem Projekt „GO 2 EISENSTADT 4 LIVING“ und bieten
auf unserer Projektwebsite [https://www.go2eisenstadt.at] www.go2eisenstadt.at [http://www.go2eisenstadt.at]
w w w . g o 2 e i s e n s t a d t . a t
einen Überblick über alle verfügbaren Wohneinheiten.
Mehr lesen
Dokumente
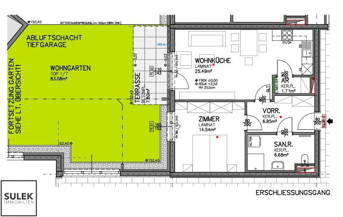
Objekt ID: 2095616
Preis: € 845.51
Nutzfläche: 55 m2
Gesamtfläche: 0 m2
Ziimmer insgesamt: 2
Schlafzimmer: 2
Badezimmer: 0
Miete (netto) €: 702.86
Betriebskosten €: 116.12
Gesamtbelastung €: 845.51
Nutzungsart: Wohnen
Provisionspflichtig: nein
HWB: 33 kWh/(m²*a)
HWB Klasse: B
FGEE: 0.62
E-Ausweis Gültig Bis:: 01.04.2029
Energieausweis Art: Bedarf
Balkon/Terrassen - Fläche: 7
Beziehbar: 01.03.2025
Etage: EG
Neubau
Personenaufzug
Dusche
Fußbodenheizung
Kabel/Sat-TV
Fahrradraum
offene Küche
Abstellraum
Offene Küche
Rollläden
Laminat
Freiplatz
Luft-Wärmepumpe
Ähnliche Objekte
Gemütliches Zuhause in zentraler Lage –...
€ 790 pro Monat
2
Schlafzimmer
1
Badezimmer
70 m2
Größe
Dezember 28, 2025
Erstbezugswohnung im Projekt GO2EISENSTADT4L...
€ 1.158.65
3
Schlafzimmer
1
Badezimmer
74 m2
Größe
November 5, 2025
Wohnen in Bahnhofsnähe: 2 Zimmer Erstbezug m...
€ 834.87
2
Schlafzimmer
1
Badezimmer
55 m2
Größe
November 5, 2025

















