Erweiterte Suche
Andere Eigenschaften
Suchagent aktivieren
Exklusive Anzeigen

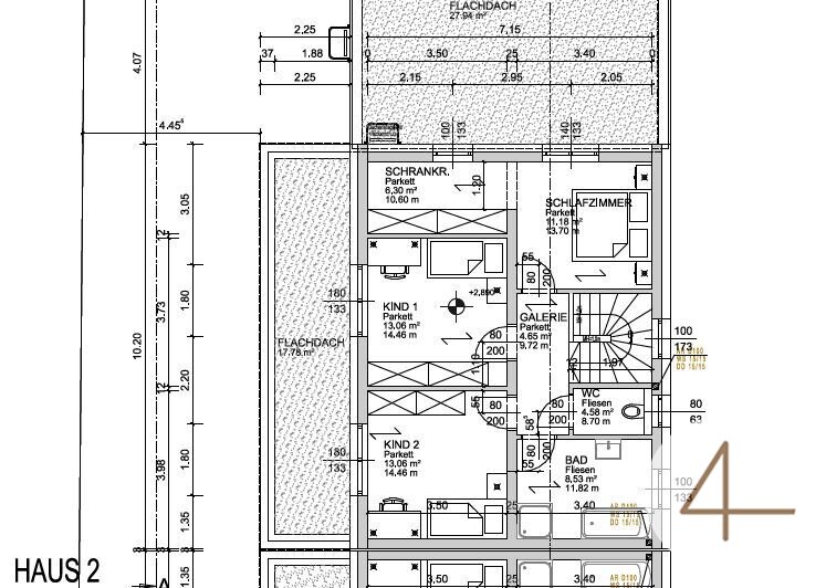
Doppelhaushälfte mit 2 Garagen

€ 480.000,00

,

134.65
zu Favoriten hinzufügen
teilen
Suchergebnisse

Objektbeschreibung

 

Die Kurzinformation für eilige Leser:

* Doppelhaushälfte Erstbezug  Schlüsselfertige Übergabe
* Nutzfläche lt.Plan rund 183 m² inkl. Technikraum 
* Erdgeschoß ca. 68,83 m2 : 40,69 m2 großer Wohn-Ess-Küchenbereich mit Ausgang auf die 18 m2 Terrasse und kleiner Garten, 10,50m2 Arbeitszimmer, 3,61m2 WC mit Dusche, 9,57m2 Vorzimmer und 4,46m2 Technikraum.
*
Mehr lesen

Bezirk:
Bundesland:
PLZ: 3300
Land: Österreich
Objekt ID: 2101466
Preis: € 480.000
Nutzfläche: 135 m2
Gesamtfläche: 183 m2
Ziimmer insgesamt: 0
Schlafzimmer: 0
Badezimmer: 0
Nutzungsart: Wohnen
Provisionspflichtig: ja
Provision: 17.280,00 € inkl. 20% USt.

Ähnliche Objekte

vergleichen
4jPPiG4hbGvzk3v231fQRg 2

Doppelhaushälfte mit 2 Garagen

€ 570.000
131 m2
Größe
Oktober 31, 2025
vergleichen
4jPPiG4hbGvzk3v231fQRg 1

Doppelhaushälfte mit 2 Garagen

€ 480.000
135 m2
Größe
Oktober 31, 2025

4immobilien GmbH
Thomas Mader

Kontaktaufnahme









    • Preisinformation
      Objektpreis480.000,00 €

    Vergleichen