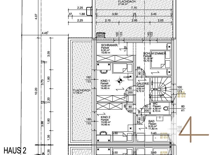
Objektbeschreibung
Die Kurzinformation für eilige Leser:
* Doppelhaushälfte Erstbezug Schlüsselfertige Übergabe
* Nutzfläche lt.Plan rund 184,60 m² inkl. Technikraum
* Erdgeschoß ca. 68,83 m2 : 40,69 m2 großer Wohn-Ess-Küchenbereich mit Ausgang auf die 18 m2 Terrasse und kleiner Garten, 10,50m2 Arbeitszimmer, 3,61m2 WC mit Dusche, 9,57m2 Vorzimmer und 4,46m2 Technikraum.
*
Mehr lesen
Objekt ID: 2101475
Preis: € 480.000
Nutzfläche: 135 m2
Gesamtfläche: 185 m2
Ziimmer insgesamt: 0
Schlafzimmer: 0
Badezimmer: 0
Nutzungsart: Wohnen
Provisionspflichtig: ja
Provision: 17.280,00 € inkl. 20% USt.






