Objektbeschreibung
Neubau Eckreihenhaus in Kirchbichl – modernes Wohnen mit großzügigem Garten, Einzug Weihnachten 2026
Morgens die Sonne auf der eigenen Terrasse genießen, während die Kinder im Garten spielen – willkommen in Ihrem neuen Zuhause in Kirchbichl. Dieses Eckreihenhaus bietet Ihnen dank seiner bevorzugten Lage im Ensemble besonders viel Privatsphäre, mehr Grünfläche
Mehr lesen
Objekt ID: 2102274
Preis: € 825.000
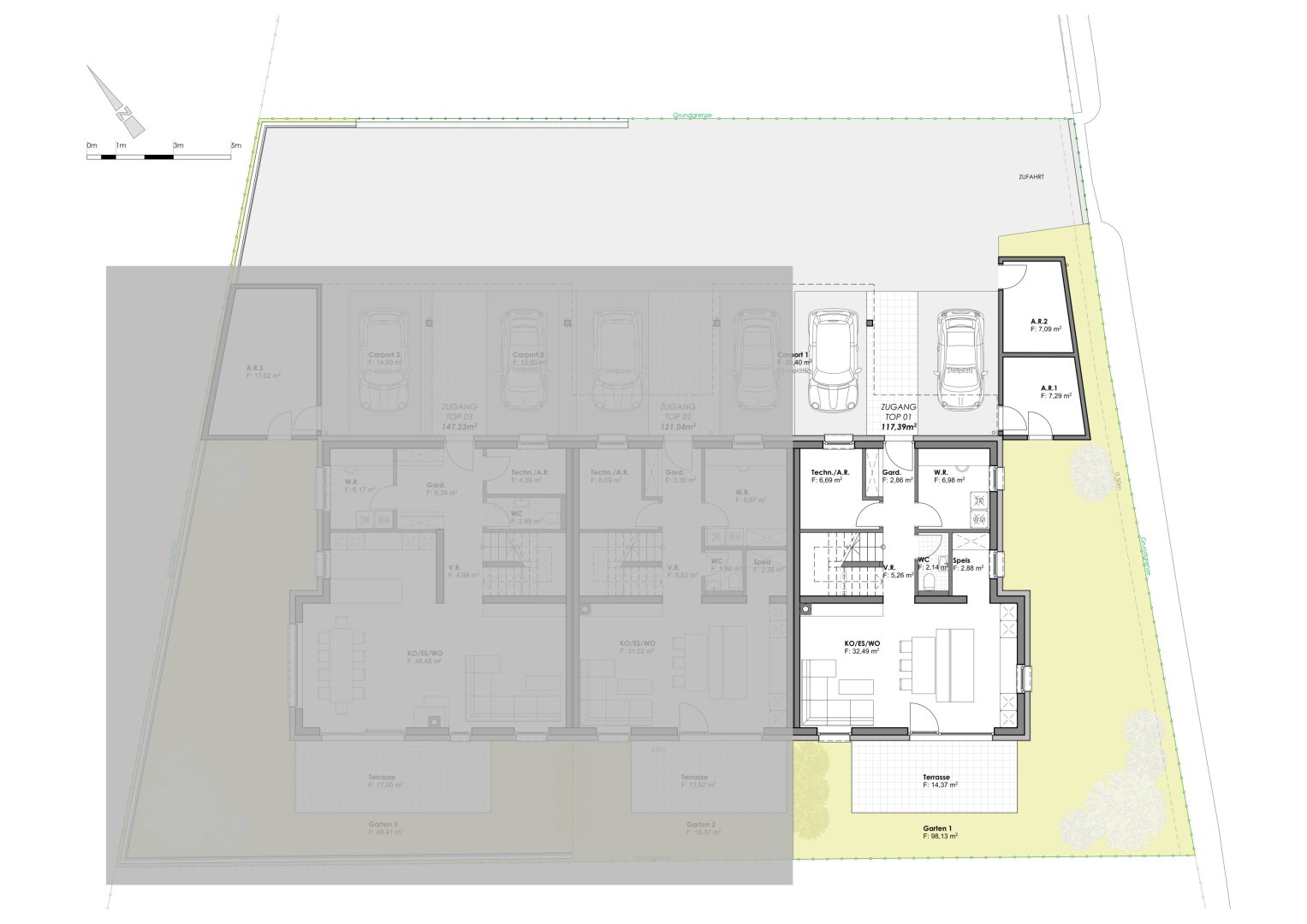
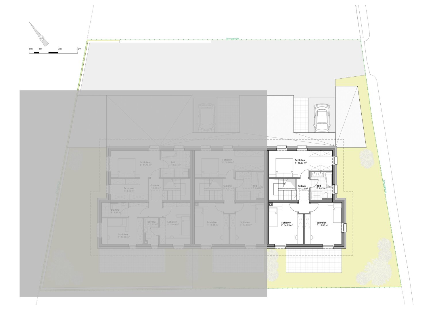
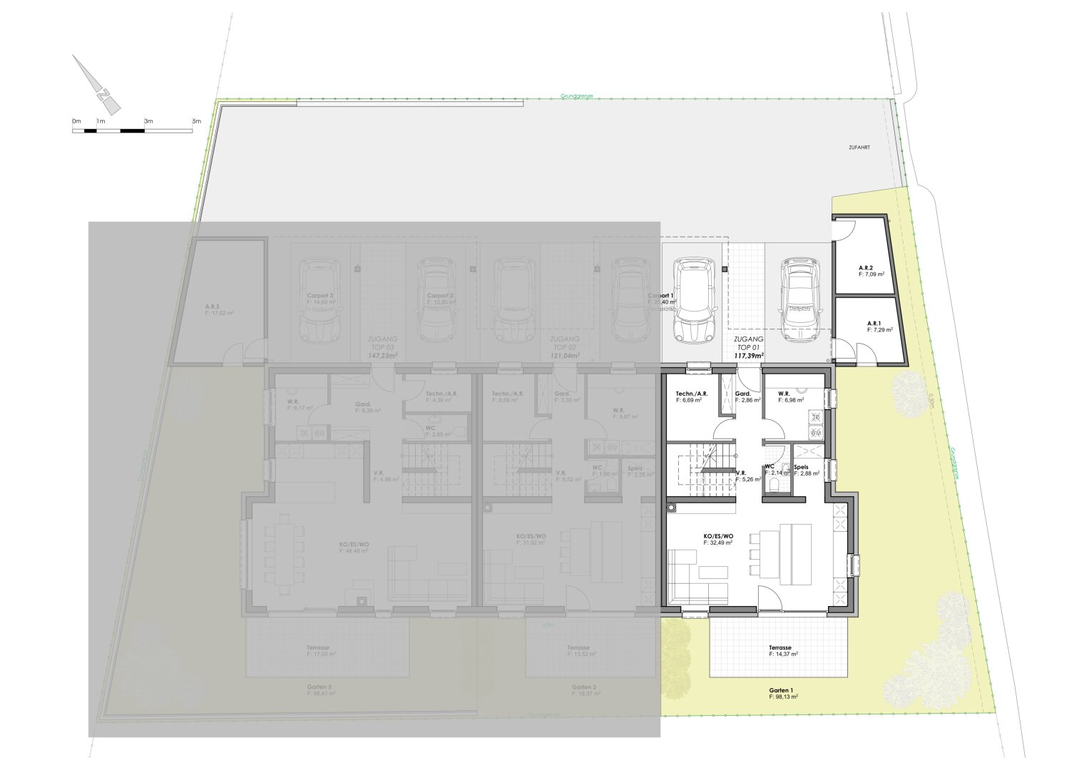
Nutzfläche: 117 m2
Gesamtfläche: 124 m2
Ziimmer insgesamt: 5
Schlafzimmer: 5
Badezimmer: 1
Nutzungsart: Anlage
Provisionspflichtig: ja
Provision: 3% des Kaufpreises zzgl. 20% USt.
HWB: 33,80 kWh/(m²*a)
HWB Klasse: B
FGEE: 0.59
E-Ausweis Gültig Bis:: 19.07.2035
Energieausweis Art: Bedarf
Beziehbar: Herbst 2026
WC: 2
Abstellräume: 1
Neubau
Gäste-WC
Parkett
Bad mit Fenster
Kabel/Sat-TV
Kamin
Zentralheizung
Abstellraum
Rollläden
Freiplatz
Luft-Wärmepumpe
Massiv
Massivbauweise
schlüsselfertig mit Bodenplatte
vollerschlossen
DV-Verkabelung
Neubaustandard
Pultdach















