Objektbeschreibung
Moderne Büroflächen zu vermieten:
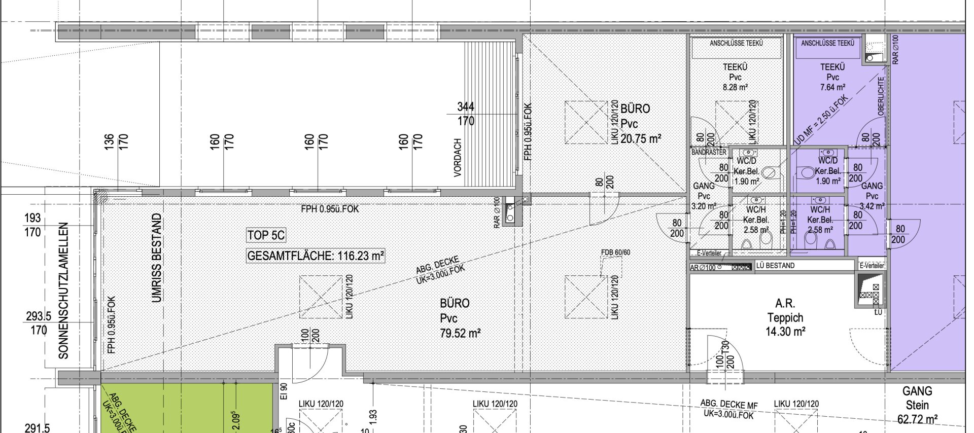
Ca. 116,23m² im 2. OG
Öffentlich erreichbar mit der Linie 66A und 70A
 Individualverkehr: Anbindung an die A23 über Knoten Inzersdorf
Miete: € 1.162,30 per Monat
 BK-aconto: € 255,71 per Monat
 Heizung-aconto: € 185,97 per Monat
 Reparaturfonds: € 34,87 per Monat
Mehr lesen
Objekt ID: 2102476
Nutzfläche: 0 m2
Gesamtfläche: 116 m2
Ziimmer insgesamt: 3
Schlafzimmer: 3
Badezimmer: 0
Miete/m2 €: 10
Miete (netto) €: 1162.3
USt €: 297.55
Nutzungsart: Gewerbe
Provisionspflichtig: ja
Kaution: 3 Bruttomonatsmieten
Beziehbar: sofort
Max. Mietdauer: unbefristet
Etage: 2. Etage
Abstellräume: 1
Zentralheizung
Teeküche






