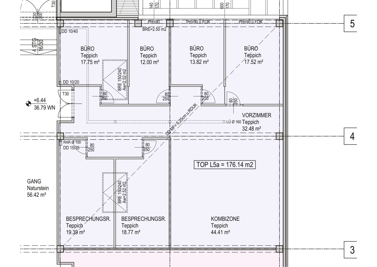
Objektbeschreibung
Moderne Bürofläche mit ca. 176,14m² im 2. Obergeschoss zu vermieten:
Ausstattung:
 * Personenaufzug
 * Lastenaufzug (200 cm x 280 cm)
Anbindung:
 * Öffentlich erreichbar mit der Linie 66A und 70A
 * Individualverkehr: Anbindung an die A23 über Knoten Inzersdorf
Kosteninformation: 
 Miete: € 1.321,05 per
Mehr lesen
Objekt ID: 2102538
Nutzfläche: 0 m2
Gesamtfläche: 176 m2
Ziimmer insgesamt: 7
Schlafzimmer: 7
Badezimmer: 0
Miete/m2 €: 7.5
Miete (netto) €: 1321.05
USt €: 355.8
Nutzungsart: Gewerbe
Provisionspflichtig: ja
Kaution: 3 Bruttomonatsmieten
HWB: 40,16 kWh/(m²*a)
HWB Klasse: B
Energieausweis Art: Bedarf
Max. Mietdauer: unbefristet
Etage: 2. Etage
barrierefrei
Personenaufzug
Klimaanlage
Lastenaufzug






