Objektbeschreibung
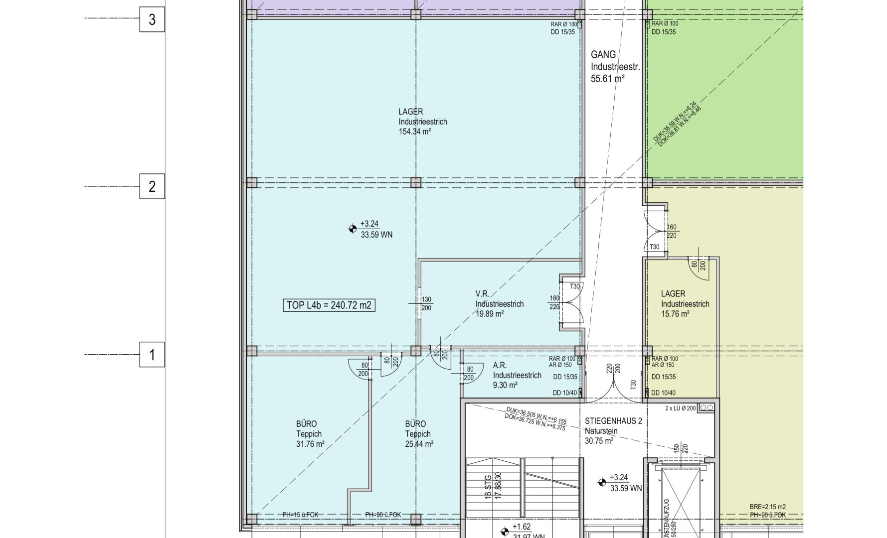
Lagerflächen mit Büro ca. 240,72m² im 1. Stock zu vermieten:
Adaptierung der Räumlichkeiten in Absprache mit dem Mieter!
Anbindung:
 * Öffentlich erreichbar mit der Linie 66A und 70A
 * Individualverkehr: Anbindung an die A23 über Knoten Inzersdorf
Ausstattung:
 * Personenaufzug
 * Lastenaufzug (200 cm x
Mehr lesen
Objekt ID: 2103128
Nutzfläche: 0 m2
Gesamtfläche: 241 m2
Ziimmer insgesamt: 3
Schlafzimmer: 3
Badezimmer: 0
Miete/m2 €: 6.5
Miete (netto) €: 1564.68
USt €: 438.11
Nutzungsart: Gewerbe
Provisionspflichtig: ja
Kaution: 3 Bruttomonatsmieten
HWB: 40,16 kWh/(m²*a)
HWB Klasse: B
Energieausweis Art: Bedarf
Max. Mietdauer: unbefristet
Etage: 1. Etage
Abstellräume: 1






