Objektbeschreibung
CHARMANTE 3-ZIMMER-ALTBAUWOHNUNG ZWISCHEN AUGARTEN & PRATERSTRASSE
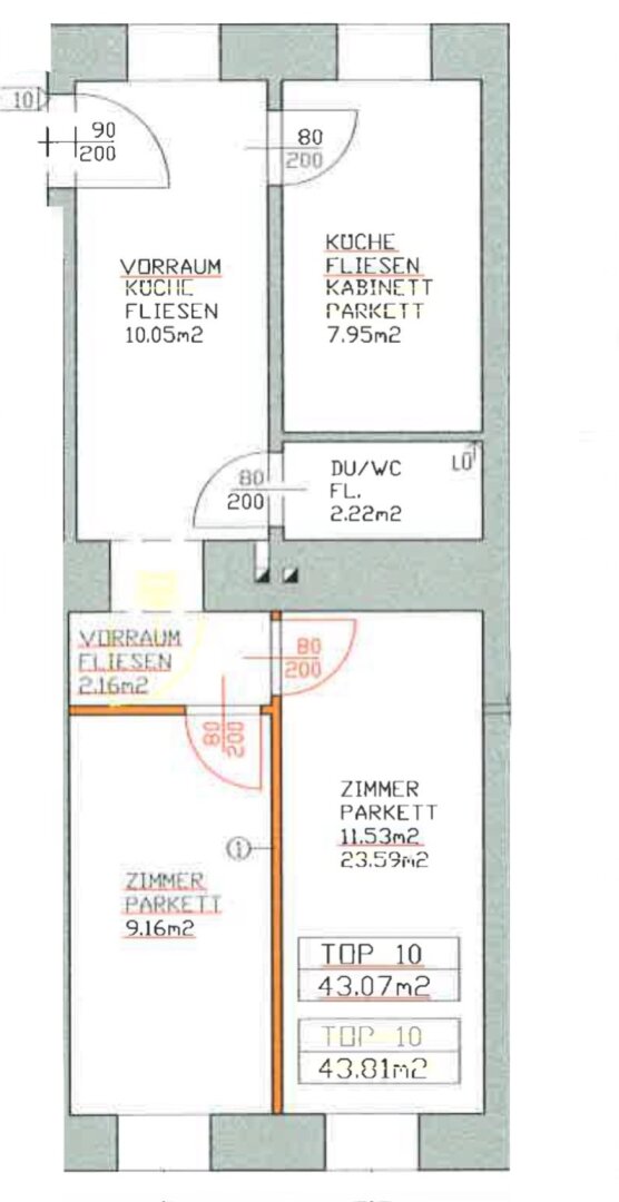
Diese gepflegte Altbauwohnung mit ca. 44 m² Wohnfläche befindet sich in begehrter Lage des 2. Bezirks – zwischen dem weitläufigen Augarten und der pulsierenden Praterstraße. Die Wohnung liegt im 1. Obergeschoss eines klassischen Wiener Zinshauses mit Lift und bietet eine gelungene Kombination aus historischem
Mehr lesen
Objekt ID: 2103450
Preis: € 229.000
Nutzfläche: 44 m2
Gesamtfläche: 0 m2
Ziimmer insgesamt: 3
Schlafzimmer: 3
Badezimmer: 1
Betriebskosten €: 129.22
Nutzungsart: Anlage
Provisionspflichtig: ja
Provision: 3% des Kaufpreises zzgl. 20% USt.
Etage: 1. Etage
WC: 1
Personenaufzug
Altbau
Etagenheizung
Gas
Parkett






