Objektbeschreibung
Näher an der Alten Donau zu wohnen, geht kaum noch. Und mehr Grün so nahe der City, findet sich auch selten. Diese Exklusive Wohnhausanlage an der Alten Donau bietet den optimalen Mix aus Luxus, Komfort und Urlaubsflair mitten in Wien.
Für Eigentümer liegen in der Segelschule nebenan Boote bereit: Genießen
Mehr lesen
Objekt ID: 2112920
Preis: € 470.000
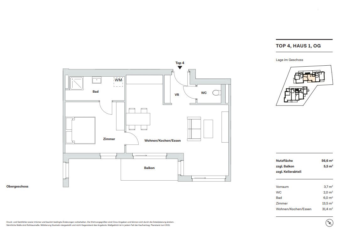
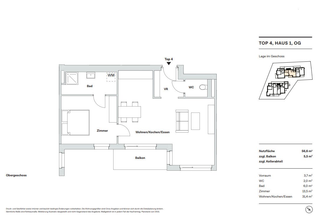
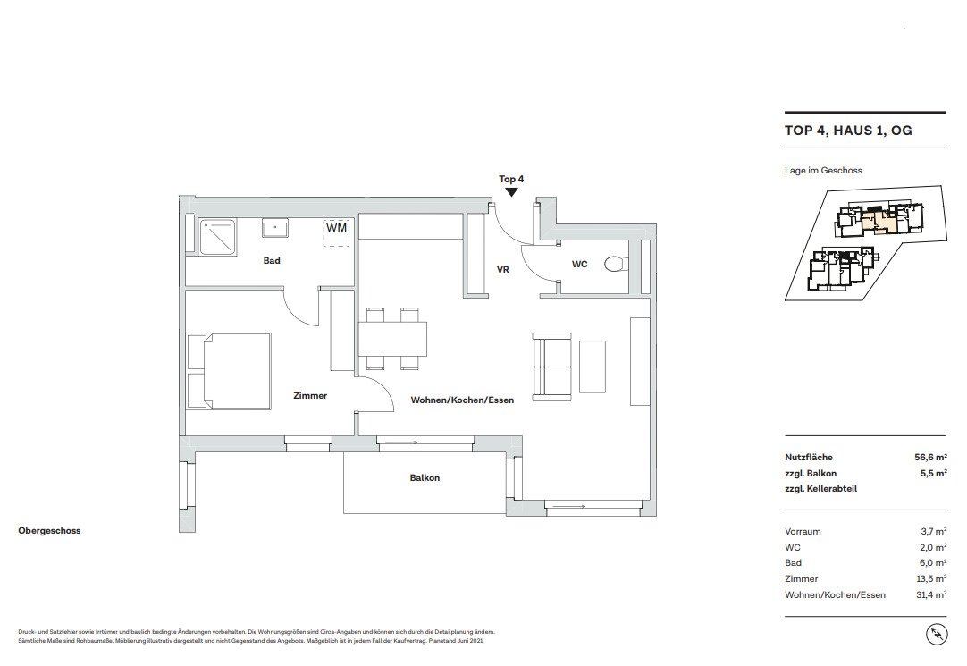
Nutzfläche: 56 m2
Gesamtfläche: 0 m2
Ziimmer insgesamt: 2
Schlafzimmer: 2
Badezimmer: 1
Nutzungsart: Wohnen
HWB: 41 kWh/(m²*a)
HWB Klasse: B
FGEE: 0.71
E-Ausweis Gültig Bis:: 17.12.2031
Energieausweis Art: Bedarf
Anzahl Balkone: 1
Balkon/Terrassen - Fläche: 5
Etage: 1. Etage
WC: 1
Balkon
Neubau
Personenaufzug
Parkett
Dusche
Fußbodenheizung
Kabel/Sat-TV
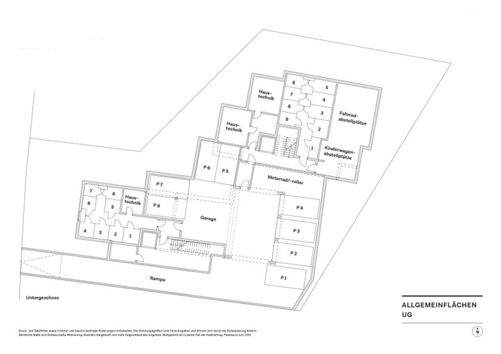
Fahrradraum
offene Küche
Abstellraum
Offene Küche
Luft-Wärmepumpe
Massiv
Massivbauweise
Flachdach
Ähnliche Objekte
U4 in 4 Gehminuten – sonnigen Balkon &...
€ 387.000
2
Schlafzimmer
1
Badezimmer
56 m2
Größe
April 19, 2026













