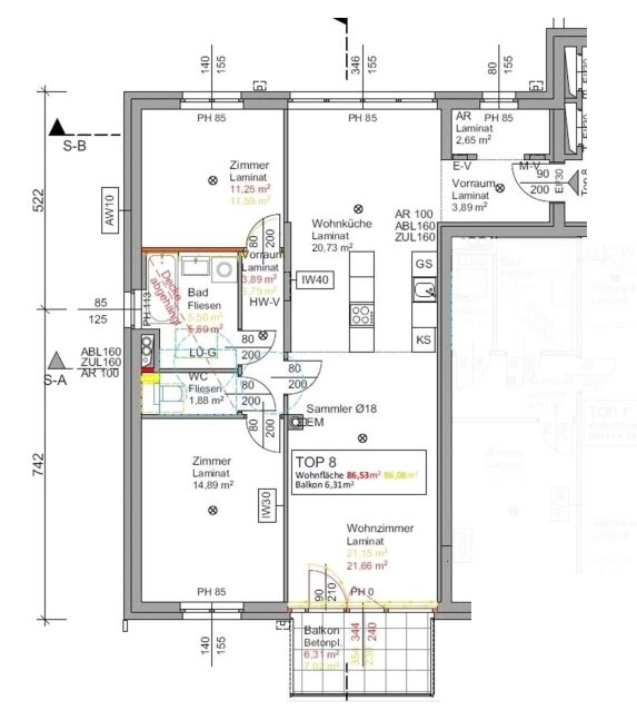
Objektbeschreibung
Diese großzügige 3 Zimmerwohnung bietet Familien ein modernes und schönes Zuhause auf rund 86 m² Wohnfläche. Das Herzstück der Wohnung ist das große Wohn-Esszimmer mit zentralem Küchenbereich. Von hier aus gelangen Sie direkt auf den sonnigen Balkon.
Im hinteren Bereich der Wohnung, zwischen den beiden Schlafräumen, befindet sich das separate Badezimmer
Mehr lesen
Objekt ID: 2125727
Preis:  € 1.078.03 
Nutzfläche: 86 m2
Gesamtfläche: 100 m2
Ziimmer insgesamt: 3
Schlafzimmer: 3
Badezimmer: 1
Miete (netto) €: 646.04
USt €: 91.81
Gesamtbelastung €: 1078.03
Nutzungsart: Wohnen
Provisionspflichtig: nein
HWB: 27,60 kWh/(m²*a)
HWB Klasse: B
FGEE: 0.62
Energieausweis Art: Bedarf
Anzahl Balkone: 1
Balkon/Terrassen - Fläche: 5
Beziehbar: sofort
Max. Mietdauer: unbefristet
Etage: 1. Etage
WC: 1
Abstellräume: 1
Balkon
barrierefrei
Neubau
Personenaufzug
Gäste-WC
Badewanne
Kabel/Sat-TV
Fahrradraum
offene Küche
Abstellraum
Offene Küche
Laminat
Garage
Massiv
Massivbauweise
Fernheizung
Fernwärme
Niedrigenergiehaus





