Objektbeschreibung
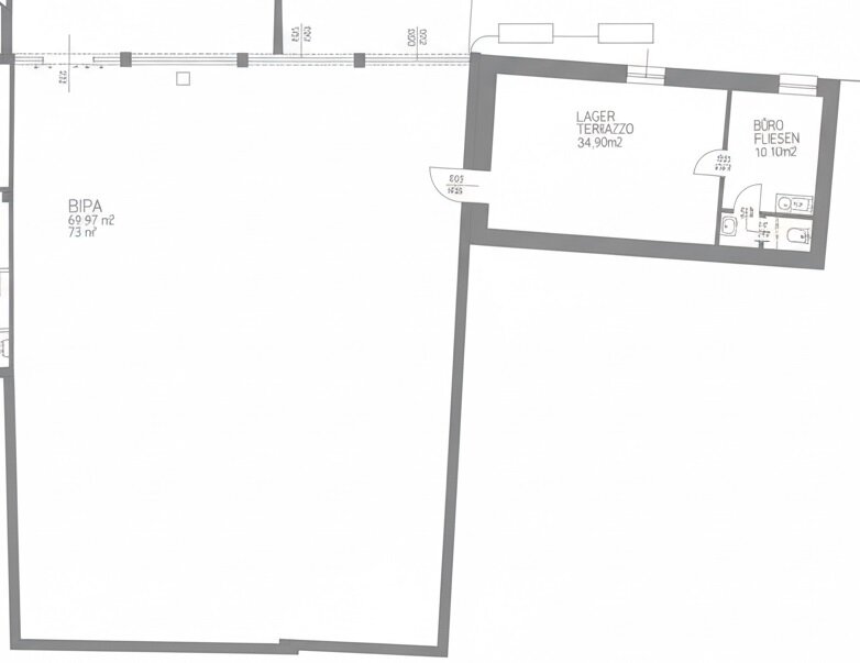
Die rund 295,18 m² große Geschäftsfläche befindet sich im Erdgeschoß der Hauptplatzpassage Neunkirchen und bietet ideale Voraussetzungen für Handels-, Dienstleistungs- oder Ausstellungszwecke. Hier profitieren Sie von einer zentralen, gepflegten und professionellen Umgebung.
Der großzügige Verkaufsraum bietet viel Platz für unterschiedliche Nutzungsmöglichkeiten und überzeugt durch seine offene Raumgestaltung. Die große Schaufensterfläche
Mehr lesen
Objekt ID: 2130584
Nutzfläche: 0 m2
Gesamtfläche: 295 m2
Ziimmer insgesamt: 2
Schlafzimmer: 2
Badezimmer: 0
Miete/m2 €: 9.79
Miete (netto) €: 2890.42
USt €: 708.33
Nutzungsart: Gewerbe
Provisionspflichtig: ja
Kaution: 12.750,00 €
Beziehbar: ab sofort
Etage: EG
WC: 1
Fernheizung
Fernwärme












