Erweiterte Suche
Suchagent aktivieren
Exklusive Anzeigen

Baugrundstück mit Genehmigung Barban Istrien, 900m2

€ 69.900,00

,

zu Favoriten hinzufügen
teilen
Suchergebnisse

Objektbeschreibung

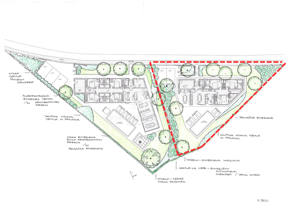
Baugrundstück mit Baugenehmigung – Istrien, Nähe Barban

Perfekte Gelegenheit für Investoren oder Ihr Ferienhaus in Istrien

Suchen Sie das ideale Grundstück in Istrien — mit gültiger Baugenehmigung, fertigem Projekt und Anschlüssen auf dem Grundstück?
Dann sind Sie hier genau richtig!

Zum Verkauf steht ein Baugrundstück von 900 m2 mit
Mehr lesen

Ort:
Bezirk:
PLZ: 52207
Land: Croatia
Objekt ID: 2133049
Preis: € 69.900
Nutzfläche: 0 m2
Gesamtfläche: 0 m2
Ziimmer insgesamt: 0
Schlafzimmer: 0
Badezimmer: 0
Nutzungsart: Anlage
Provisionspflichtig: ja

Ähnliche Objekte

vergleichen
1733393020 img 20241122 wa0001

Lands Barban, 923m2

€ 58.000
vergleichen
1733392901 img 20241122 wa0000

Lands Barban, 745m2

€ 52.000
vergleichen
1760614298 0abbbfb3 a3af 4f29 bbc7 43c34849c42d

Grundstück Barban, 2.868m2

€ 175.000
Mai 8, 2026


David Percan

Kontaktaufnahme









    • Preisinformation
      Objektpreis69.900,00 €

    Vergleichen