Objektbeschreibung
HERBSTAKTION BIS 30.11.2025 – PREISE REDUZIERT – MAJA LIVING – EINE UNVERWECHSELBARE PERLE! U-BAHN VOR DER TÜRE!
In unmittelbarer Nähe des Hauptbahnhofes und nur eine Minute von der U1-Station Keplerplatz entfernt, gelangen exklusive und stylisch konzipierte Erstbezugswohnungen zum Verkauf.
MAJA setzt auf eine moderne und effiziente Raumgestaltung, ohne dabei Kompromisse
Mehr lesen
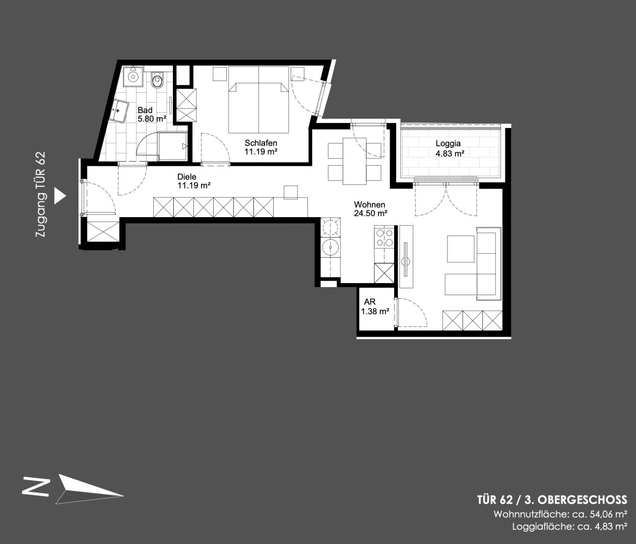
Objekt ID: 2135148
Preis: € 299.900
Nutzfläche: 54 m2
Gesamtfläche: 59 m2
Ziimmer insgesamt: 2
Schlafzimmer: 2
Badezimmer: 1
Nutzungsart: Wohnen
Provisionspflichtig: ja
Provision: 3% des Kaufpreises zzgl. 20% USt.
HWB: 21,60 kWh/(m²*a)
HWB Klasse: B
FGEE: 0.75
E-Ausweis Gültig Bis:: 24.01.2034
Energieausweis Art: Bedarf
Balkon/Terrassen - Fläche: 4
Beziehbar: sofort
Etage: 3. Etage / 3. Liftstock
WC: 1
barrierefrei
Neubau
WG-geeignet
Personenaufzug
Dusche
Fußbodenheizung
Kabel/Sat-TV
offene Küche
Offene Küche
Rollläden
rollstuhlgerecht
Estrich
Fernwärme
schlüsselfertig mit Keller
seniorengerecht
Räume veränderbar
Ähnliche Objekte
Viel Platz, viel Freifläche, viel Grün: NEU ...
€ 369.000
2
Schlafzimmer
1
Badezimmer
56 m2
Größe
März 5, 2026











