Objektbeschreibung
Die Kurzinformation für eilige Leser
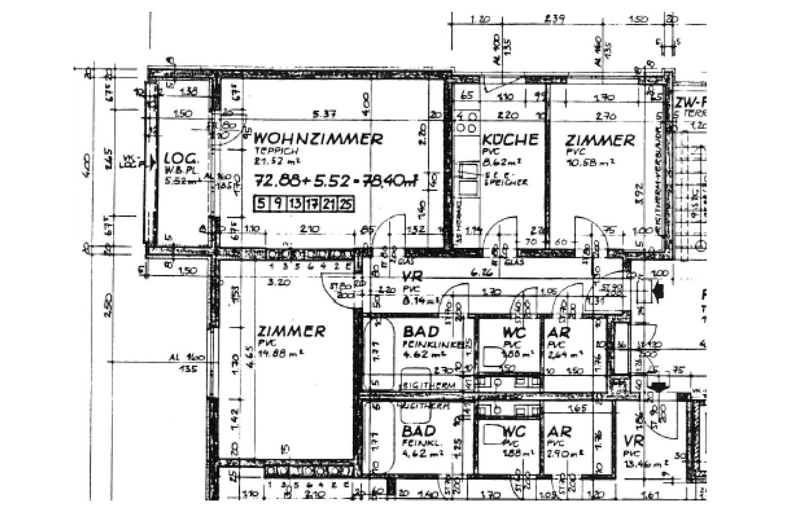
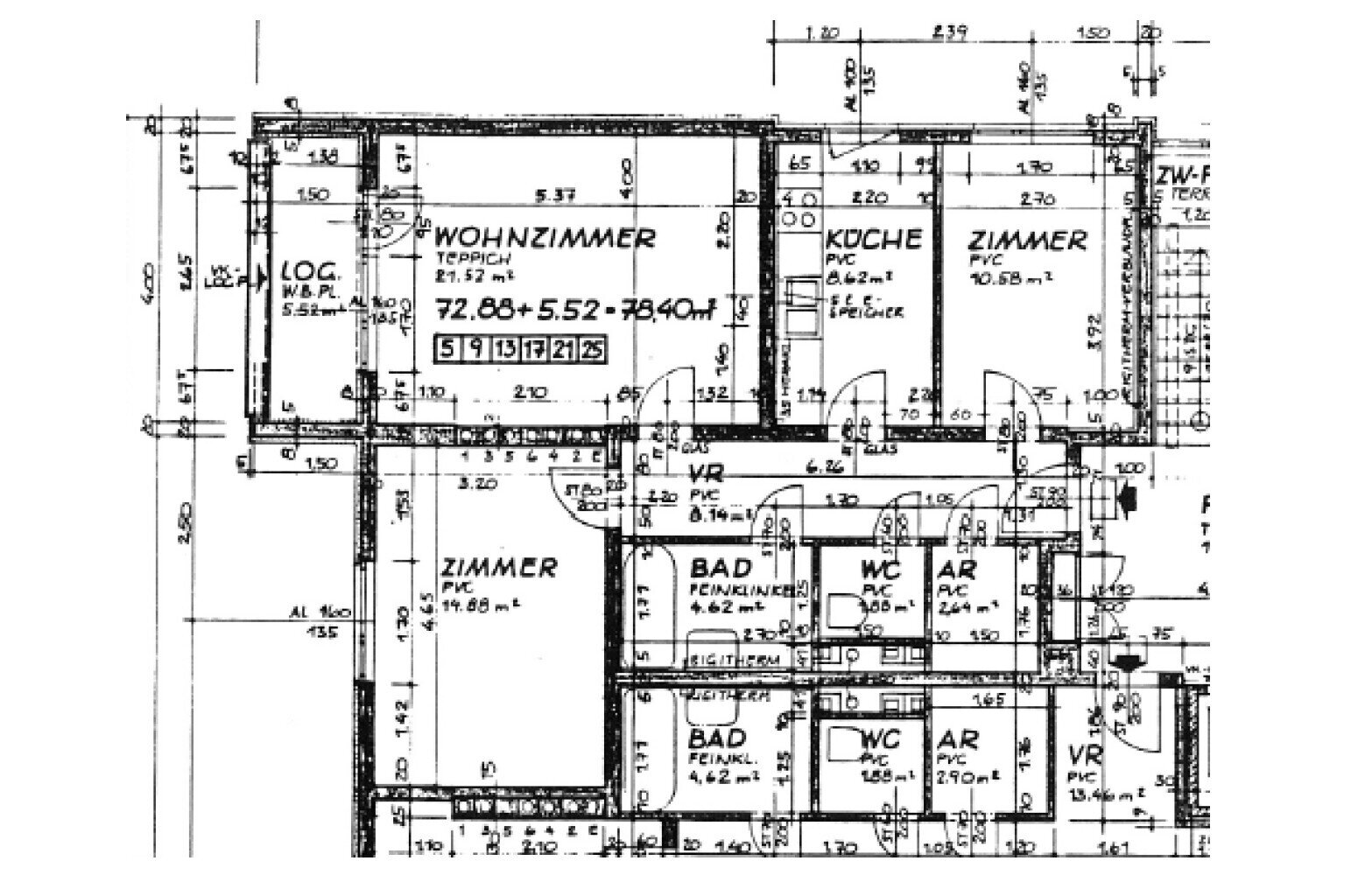
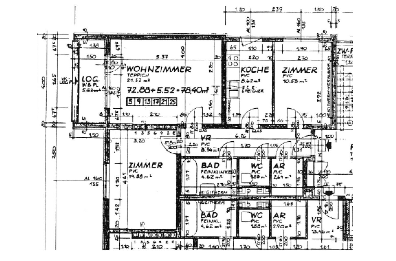
* rund 73 m² Wohnnutzfläche, zentral begehbar
bestehend aus: Vorraum, Küche, Wohnzimmer mit Ausgang auf die Loggia, Esszimmer (optional Kinderzimmer), Schlafzimmer, separates WC,
Badezimmer mit Badewanne und Waschmaschinenanschluss, Abstellraum
* Loggia mit rund 5,52 m²
* manuelle Außenjalousien
* zugeordnetes
Mehr lesen
Dokumente
Objekt ID: 2135707
Preis: € 120.000
Nutzfläche: 73 m2
Gesamtfläche: 0 m2
Ziimmer insgesamt: 3
Schlafzimmer: 3
Badezimmer: 1
Nutzungsart: Wohnen
Provisionspflichtig: ja
Provision: 3% des Kaufpreises zzgl. 20% USt.
HWB: 59,60 kWh/(m²*a)
HWB Klasse: C
FGEE: 1.29
E-Ausweis Gültig Bis:: 16.10.2033
Energieausweis Art: Bedarf
Balkon/Terrassen - Fläche: 5
WC: 1
Abstellräume: 1
Neubau
Ähnliche Objekte
Gepflegte Wohnung im Herzen von Leopoldsdorf...
€ 129.000
2
Schlafzimmer
1
Badezimmer
60 m2
Größe
April 3, 2026
3 Zimmer Wohnung mit Loggia in Leopoldsdorf ...
€ 115.000
2
Schlafzimmer
1
Badezimmer
69 m2
Größe
März 15, 2026
















