Objektbeschreibung
_EXKLUSIVE TOWNHÄUSER AUF EIGENGRUND IN WEIDLING – NATURNAHES WOHNEN MIT STIL_
In traumhafter Lage von Klosterneuburg-Weidling entstand auf Eigengrund ein Wohnprojekt, das architektonische Raffinesse, luxuriöse Ausstattung und durchdachte Bauweise in perfekter Harmonie vereint. Hinter liebevoll revitalisierten Fassaden verbirgt sich eine einzigartige Wohnhausanlage mit 8 exklusiven Townhäusern, eingebettet in einen geschützten
Mehr lesen
Objekt ID: 2139940
Preis: € 1.090.000
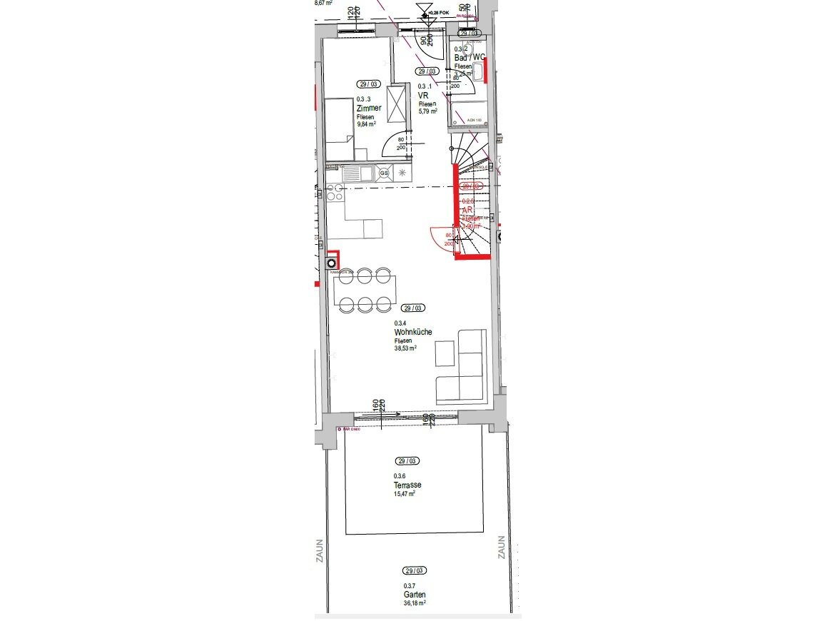
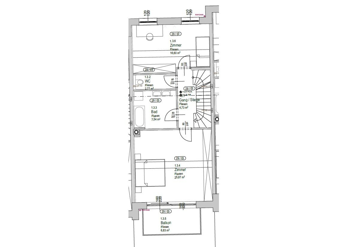
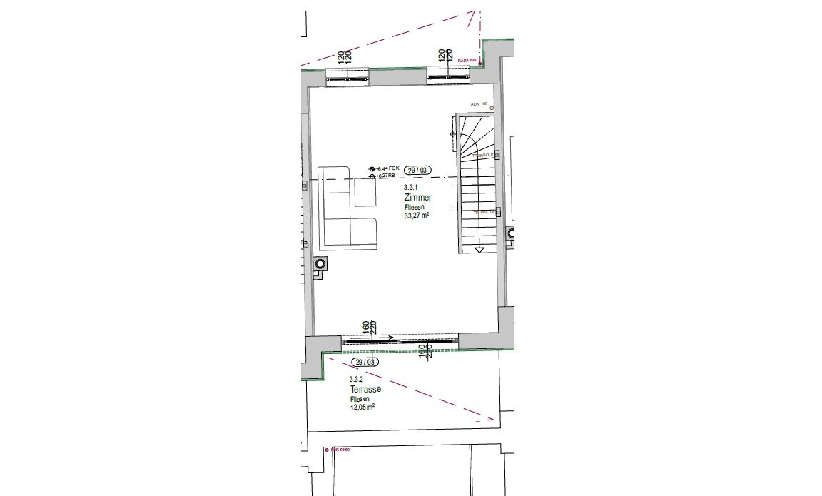
Nutzfläche: 152 m2
Gesamtfläche: 159 m2
Ziimmer insgesamt: 5
Schlafzimmer: 5
Badezimmer: 2
Nutzungsart: Wohnen
Provisionspflichtig: ja
Provision: 3% des Kaufpreises zzgl. 20% USt.
HWB: 38,70 kWh/(m²*a)
HWB Klasse: B
FGEE: 0.75
Energieausweis Art: Bedarf
Anzahl Balkone: 1
Balkon/Terrassen - Fläche: 34
Beziehbar: nach Vereinbarung
Etage: Erdgeschoss, Obergeschoss, Dachgeschoss
WC: 2
Abstellräume: 1
Balkon
Neubau
Gäste-WC
Badewanne
Fußbodenheizung
offene Küche
Abstellraum
Offene Küche
Luft-Wärmepumpe
Massiv
Massivbauweise
vollerschlossen
Estrich
Gartennutzung
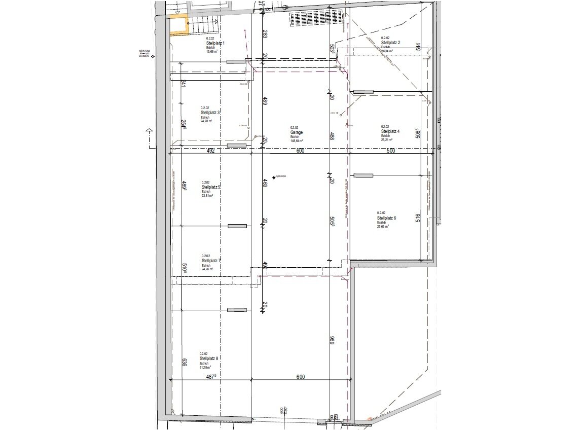
Tiefgarage
Ähnliche Objekte
Sonnige 3- Zimmerwohnung mit Loggia in zentr...
€ 295.000
3
Schlafzimmer
1
Badezimmer
70 m2
Größe
Mai 10, 2026








































