Objektbeschreibung
EIN INVESTMENT MIT STIL UND VERANTWORTUNG
Zeitlos. Nachhaltig. Wertbeständig.
Das Wohnprojekt beim Stadtpark Atzgersdorf und der Liesing vereint architektonische Eleganz mit zukunftsorientierter Bauweise – und bietet innen die Möglichkeit, in eine Immobilie mit hervorragendem Entwicklungspotenzial zu investieren.
Auf fünf Etagen und zwei Dachgeschossen entstehen 38 hochwertige Eigentumswohnungen, die durch
Mehr lesen
Dokumente
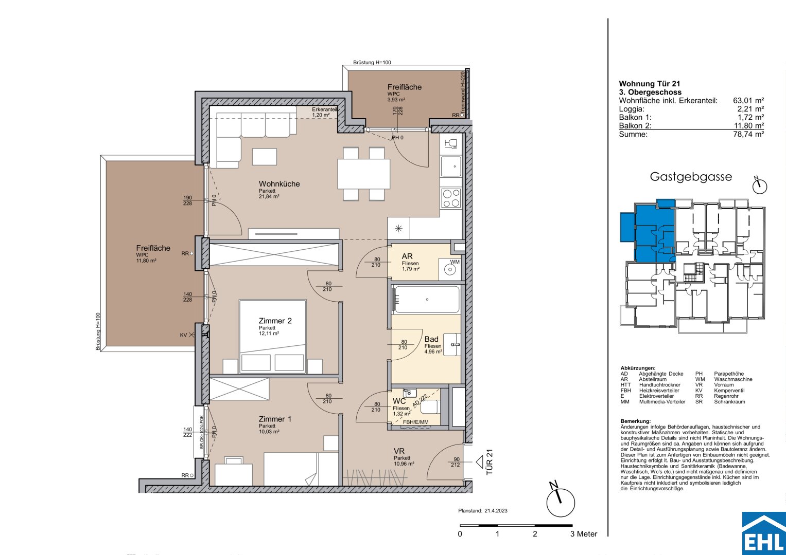
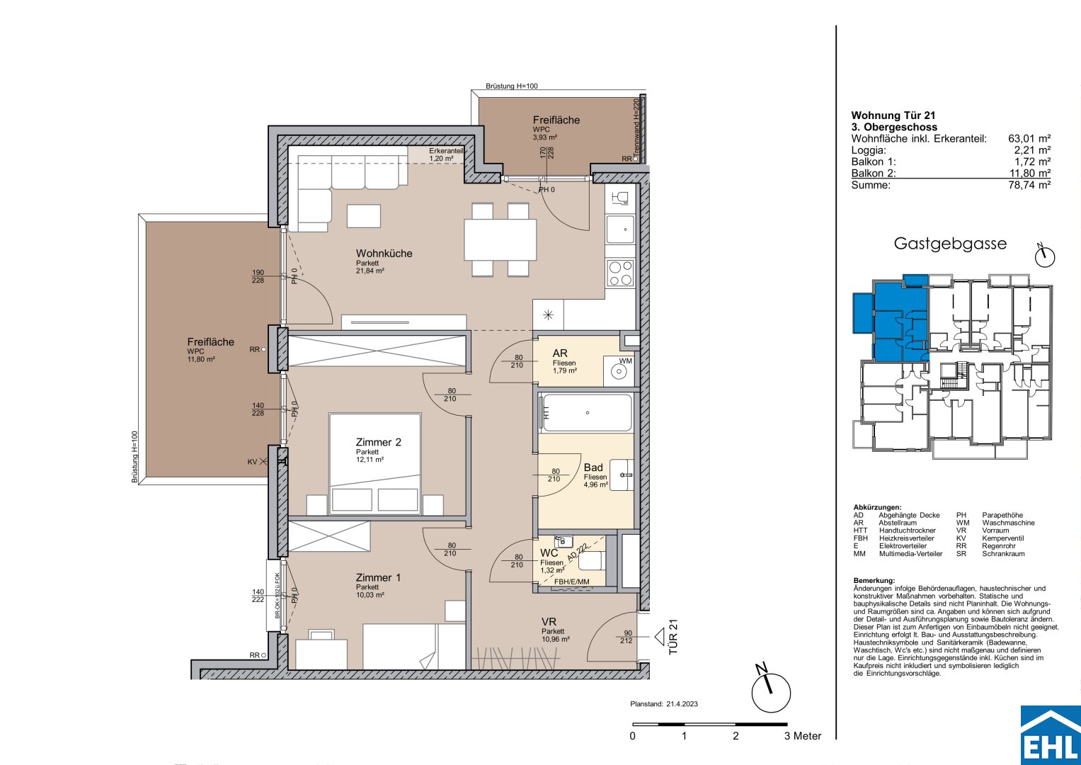
Objekt ID: 2140568
Preis: € 348.214.29
Nutzfläche: 63 m2
Gesamtfläche: 79 m2
Ziimmer insgesamt: 3
Schlafzimmer: 3
Badezimmer: 1
Nutzungsart: Anlage
Provisionspflichtig: nein
Provision: Provision bezahlt der Abgeber.
HWB: 26,50 kWh/(m²*a)
HWB Klasse: B
FGEE: 0.74
E-Ausweis Gültig Bis:: 18.03.2031
Energieausweis Art: Bedarf
Anzahl Balkone: 2
Balkon/Terrassen - Fläche: 15
Beziehbar: sofort
Etage: 3. Etage / 3. Etage
WC: 1
Abstellräume: 1
Balkon
Neubau
Personenaufzug
Parkett
Badewanne
Fußbodenheizung
Abstellraum
Massiv
Massivbauweise
Tiefgarage
Erdwärme
Ähnliche Objekte
Anlegerhit oder Eigenheim | Sanierte 2-Zimme...
€ 299.000
2
Schlafzimmer
1
Badezimmer
60 m2
Größe
Mai 10, 2026
Hofseitige Gartenwohnung mit Terrasse I Grün...
€ 360.000
3
Schlafzimmer
1
Badezimmer
59 m2
Größe
Mai 10, 2026














