Objektbeschreibung
Ab sofort steht eine helle 2-Zimmer-Mietwohnung in Graz im 3. OG mit Lift in der Zweiglgasse 14 zur Verfügung.
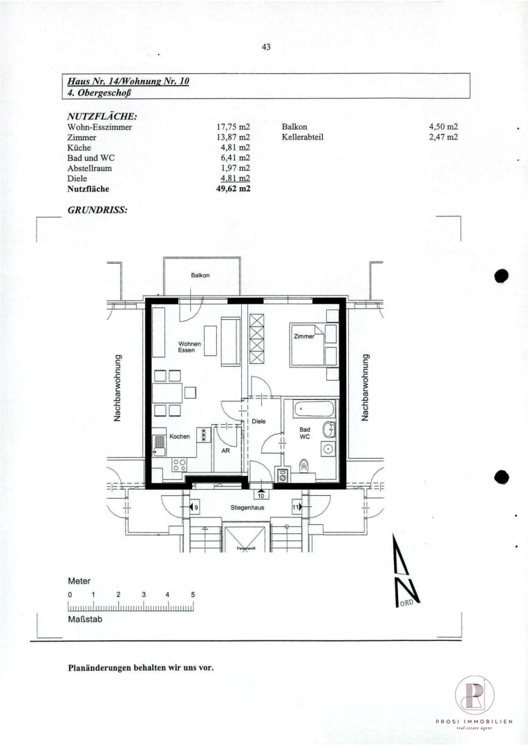
Die Wohnung überzeugt durch ihre praktische Raumaufteilung, Balkon, Kellerabteil und Tiefgaragenplatz – ideal für Paare, kleine Familien oder Singles, die modernes Wohnen in zentraler Lage suchen.
Raumaufteilung:
*
Wohn-Esszimmer mit Küche
Mehr lesen
Objekt ID: 2142722
Preis: € 686
Nutzfläche: 50 m2
Gesamtfläche: 0 m2
Ziimmer insgesamt: 2
Schlafzimmer: 2
Badezimmer: 1
Miete (netto) €: 686
Gesamtbelastung €: 686
Nutzungsart: Wohnen
Provisionspflichtig: nein
Kaution: 3 Bruttomonatsmieten
HWB: 45 kWh/(m²*a)
Energieausweis Art: Bedarf
Anzahl Balkone: 1
Beziehbar: 01.11.2025
Max. Mietdauer: unbefristet
Etage: 1. Etage
WC: 1
Balkon
Ähnliche Objekte
Kompakte Wohlfühl-Garçonnière in Grazer Lend...
€ 419
1
Schlafzimmer
1
Badezimmer
23 m2
Größe
Dezember 20, 2025
Vollmöblierte Single-Wohnung / Garçonnière z...
€ 598
1
Schlafzimmer
1
Badezimmer
32 m2
Größe
Dezember 20, 2025
NEU sanierte Altbauwohnung in Zentrumsnähe
€ 1.384.72
3
Schlafzimmer
1
Badezimmer
89 m2
Größe
Dezember 20, 2025






