Objektbeschreibung
Dieses Einfamilienhaus wurde 2004 in massiver Bauweise errichtet und befindet sich in einer sehr guten Lage mit perfekter Anbindung in Haid.
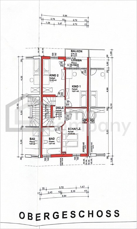
Die Wohnfläche von ca. 155 m² verteilt sich auf drei Stockwerke mit insgesamt fünf Zimmern + einer Terrasse und einem Balkon.
Der Keller mit rund 60 m²
Mehr lesen
Objekt ID: 2143167
Preis: € 389.000
Nutzfläche: 155 m2
Gesamtfläche: 234 m2
Ziimmer insgesamt: 5
Schlafzimmer: 5
Badezimmer: 0
Nutzungsart: Wohnen
Provisionspflichtig: ja
Provision: 3% des Kaufpreises zzgl. 20% USt.
HWB: 41,80 kWh/(m²*a)
HWB Klasse: B
FGEE: 1.03
E-Ausweis Gültig Bis:: 17.01.2026
Energieausweis Art: Bedarf
Anzahl Balkone: 1
Balkon/Terrassen - Fläche: 24
Beziehbar: ab sofort
WC: 2
Balkon
Einbauküche
Gäste-WC
Gas
Parkett
Bad mit Fenster
Zentralheizung
Massiv
Massivbauweise











