Objektbeschreibung
Ein Haus mit Stil und Verantwortung
Zeitlos, elegant und zukunftsorientiert. Das Wohnprojekt beim Stadtpark Atzgersdorf und der Liesing, vereint urbanen Lifestyle mit nachhaltiger Architektur.
Auf fünf Etagen und zwei Dachgeschossen erstrecken sich nur 38 Eigentumswohnungen, die Design, Komfort und Lebensqualität auf harmonische Weise verbinden. Großzügige Freiflächen, ein durchdachtes Energiekonzept
Mehr lesen
Dokumente
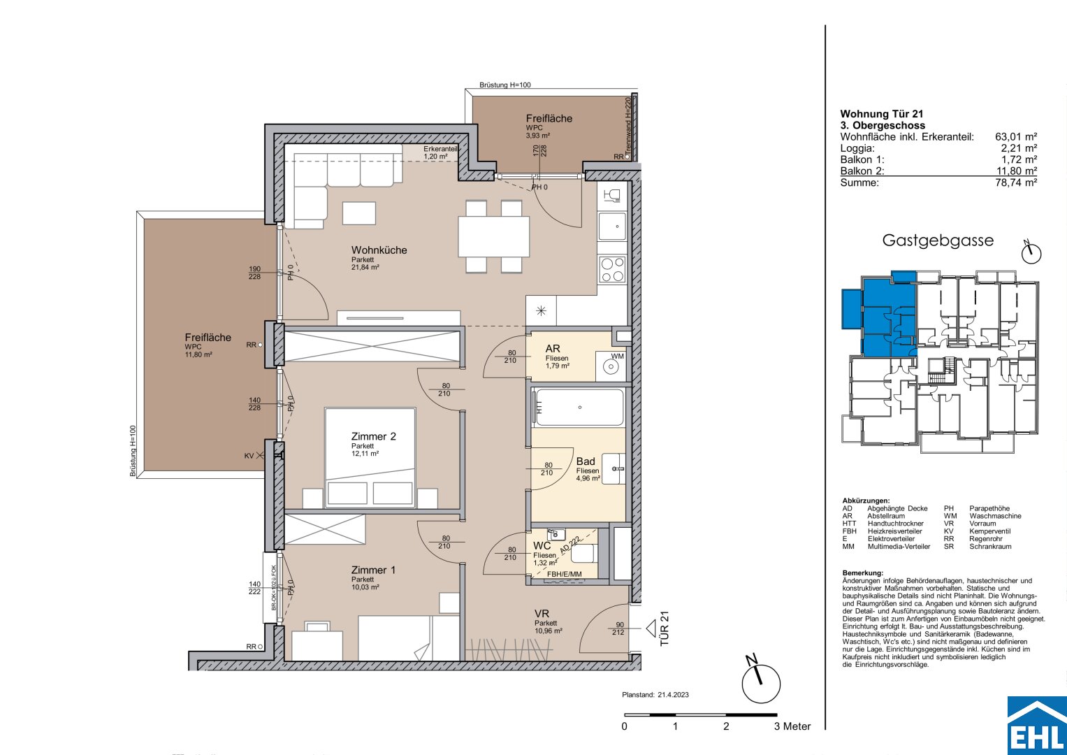
Objekt ID: 2146923
Preis: € 390.000
Nutzfläche: 63 m2
Gesamtfläche: 79 m2
Ziimmer insgesamt: 3
Schlafzimmer: 3
Badezimmer: 1
Nutzungsart: Wohnen
Provisionspflichtig: nein
Provision: Provision bezahlt der Abgeber.
HWB: 26,50 kWh/(m²*a)
HWB Klasse: B
FGEE: 0.74
E-Ausweis Gültig Bis:: 18.03.2031
Energieausweis Art: Bedarf
Anzahl Balkone: 2
Balkon/Terrassen - Fläche: 15
Beziehbar: sofort
Etage: 3. Etage / 3. Etage
WC: 1
Abstellräume: 1
Balkon
Neubau
Personenaufzug
Parkett
Badewanne
Fußbodenheizung
Abstellraum
Massiv
Massivbauweise
Tiefgarage
Erdwärme
Ähnliche Objekte
U1 Donauinsel – luxuriöse Liegenschaft...
€ 1.250.000
4
Schlafzimmer
2
Badezimmer
151 m2
Größe
April 15, 2026















