Objektbeschreibung
In einer der besten Lagen des 19. Bezirks – ruhig gelegen am Hackenberg – präsentiert sich dieses freistehende Einfamilienhaus als seltene Gelegenheit für anspruchsvolles Wohnen. Auf drei Wohnebenen bietet die Liegenschaft vier helle Zimmer mit unverbaubarem Blick über die umliegenden Weinberge. Der gepflegte Garten mit Pool bietet Rückzug und Privatsphäre,
Mehr lesen
Objekt ID: 2150058
Preis: € 1.890.000
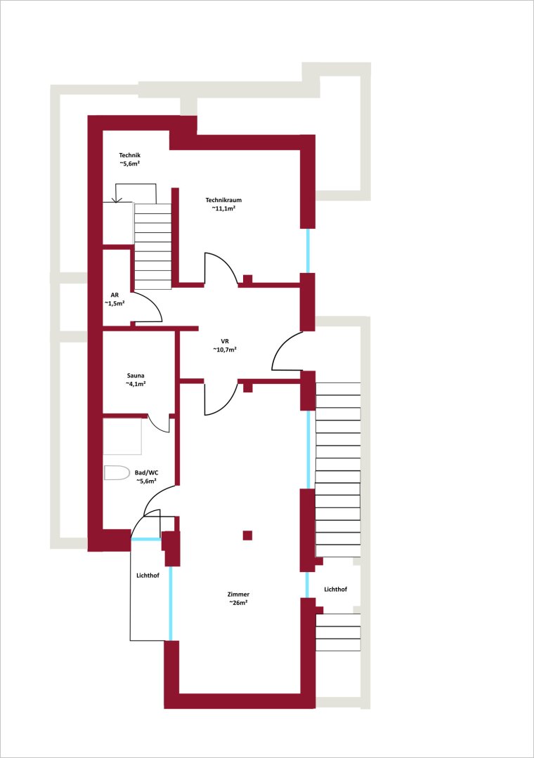
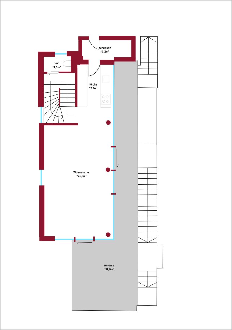
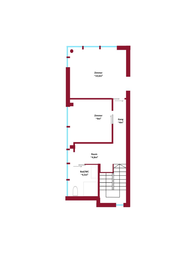
Nutzfläche: 139 m2
Gesamtfläche: 363 m2
Ziimmer insgesamt: 4
Schlafzimmer: 4
Badezimmer: 0
Nutzungsart: Wohnen
Provisionspflichtig: ja
Provision: 3% des Kaufpreises zzgl. 20% USt.
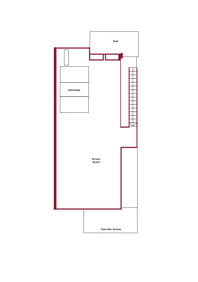
Anzahl Balkone: 1
Balkon/Terrassen - Fläche: 95
Balkon
Einbauküche
Gäste-WC
Parkett
Bad mit Fenster
Fußbodenheizung
Abstellraum
Klimaanlage
Luft-Wärmepumpe
Massiv
Massivbauweise
Wasch-/Trockenraum
Gartennutzung
Swimmingpool
Flachdach
Ähnliche Objekte
Neuwertige Villa im Cottageviertel von Mauer...
€ 1.360.000
4
Schlafzimmer
3
Badezimmer
Dezember 24, 2025
Einzigartiges Biedermeier-Juwel in nobler Dö...
€ 1.990.000
11
Schlafzimmer
2
Badezimmer
272 m2
Größe
Dezember 24, 2025
Moderne Villa mit Traumblick am Rande der St...
€ 1.985.000
5
Schlafzimmer
2
Badezimmer
213 m2
Größe
Dezember 24, 2025






![Einzigartiges Biedermeier-Juwel in nobler Döblinger Umgebung [A] 6mXd93FT3V0q6s8jPlUMhE 4](https://gesucht-gefunden.at/wp-content/uploadstorage/2025/12/6mXd93FT3V0q6s8jPlUMhE-4-525x350.jpg)


