Objektbeschreibung
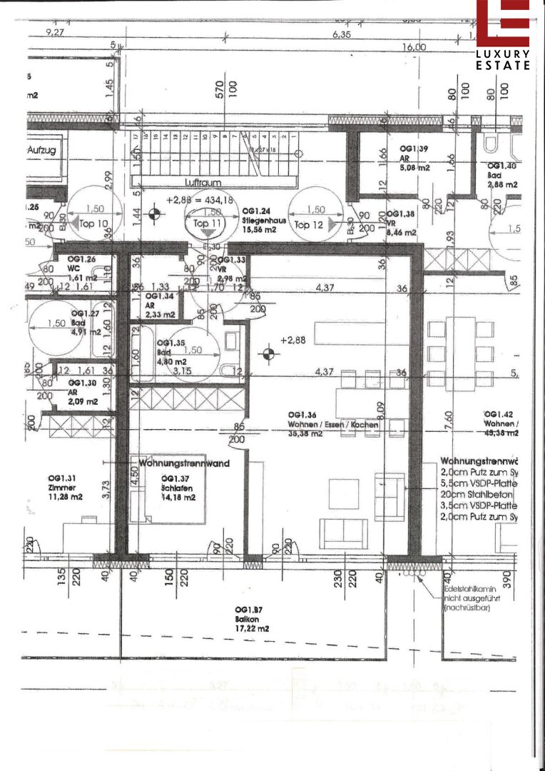
In diesem qualitativ hochwertig errichteten, Stadthaus befindet sich im 1. OG. eine großzügige, modern ausgestattete 59,67 m² große Wohneinheit, die mittelfristig vermietet ist. Die klare strukturierte Fassade des Hauses steht auch von außen für modernes und individuelles Wohnen. Im Eingangsbereich finden Sie im Vorzimmer eine großzügige Garderobe und die Zugänge
Mehr lesen
Objekt ID: 2163423
Preis: € 599.000
Nutzfläche: 60 m2
Gesamtfläche: 0 m2
Ziimmer insgesamt: 2
Schlafzimmer: 2
Badezimmer: 1
Nutzungsart: Anlage
Anzahl Balkone: 1
Balkon/Terrassen - Fläche: 17
Abstellräume: 1
Balkon
barrierefrei
Neubau
Einbauküche
Personenaufzug
Badewanne
Abstellraum
rollstuhlgerecht
Massiv
Massivbauweise
seniorengerecht
Tiefgarage
Ähnliche Objekte
Gartenwohnung in ruhiger, zentrumsnaher Lage
€ 745.000
3
Schlafzimmer
1
Badezimmer
92 m2
Größe
Dezember 20, 2025
KAUF SALZBURG STADT – PREMIUMLAGE BORR...
€ 639.000
4
Schlafzimmer
1
Badezimmer
103 m2
Größe
Dezember 19, 2025






