Objektbeschreibung
Geschlossener 218m² Lagerraum mit Rolltor zu vermieten!
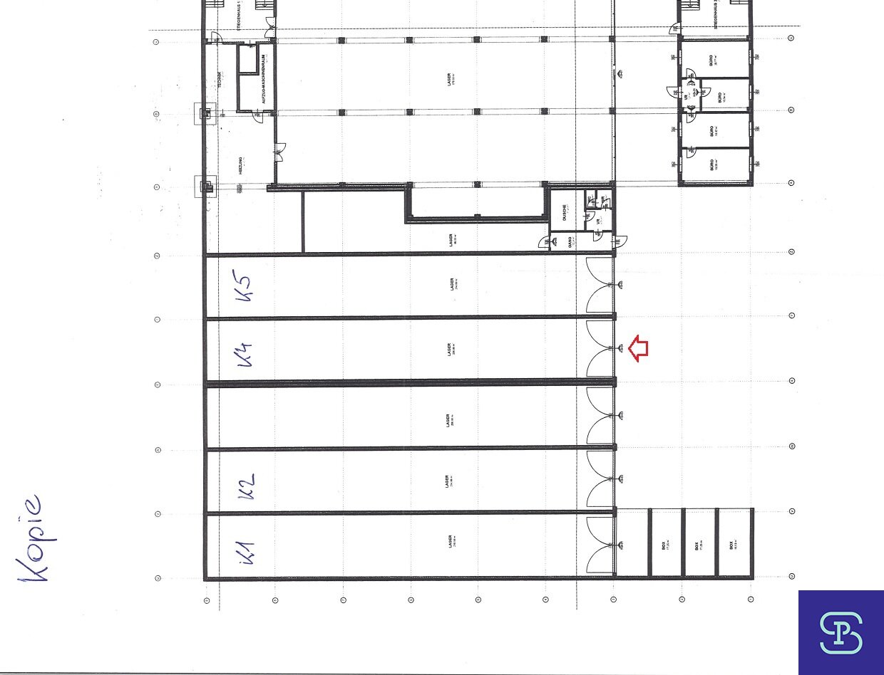
Zur Vermietung gelangen geschlossene Lagerräume mit jeweils 218m² Nutzfläche auf der Wagramer Straße, in unmittelbarer Nähe zum Rautenweg. Diese Anzeige betrifft die Einheit Lager K4. Die Anmietung ist nur zu Lagerzwecken möglich!
Ausstattung: Ebenerdiger Lagerraum mit Eingangstüre und Rolltor, Deckenbeleuchtung, Gemeinschafts-WC und Dusche zur
Mehr lesen
Objekt ID: 2170912
Nutzfläche: 0 m2
Gesamtfläche: 218 m2
Ziimmer insgesamt: 0
Schlafzimmer: 0
Badezimmer: 0
Miete/m2 €: 5.96
Miete (netto) €: 1300
USt €: 321.08
Nutzungsart: Gewerbe
Provisionspflichtig: ja
Kaution: 5.780,00 €
HWB: 47,50 kWh/(m²*a)
HWB Klasse: C
FGEE: 0.96
E-Ausweis Gültig Bis:: 19.01.2035
Energieausweis Art: Bedarf
Beziehbar: sofort
Etage: EG / EG
Neubau
Gäste-WC
Dusche
Estrich

![6 Büroräume mit Charakter – zentral gelegen im Altbauensemble [A] 2Uhl4AqMw8PuUMiKXwjCHu](https://gesucht-gefunden.at/wp-content/uploadstorage/2026/03/2Uhl4AqMw8PuUMiKXwjCHu-525x350.jpeg)






