Objektbeschreibung
In einer absolut ruhigen und grünen Umgebung inmitten von Strebersdorf werden derzeit zwei Doppelhäuser fertiggestellt, die belagsfertig oder auf Wunsch auch schlüsselfertig übergeben werden können. Bei einem Doppelhaus erfolgt die Zufahrt über den Lisseeweg und beim anderen über die Gmündstraße.
Zwischen Bäumen, Feldern und Einfamilienhäusern bietet die Lage eine
Mehr lesen
Objekt ID: 2174649
Preis: € 949.000
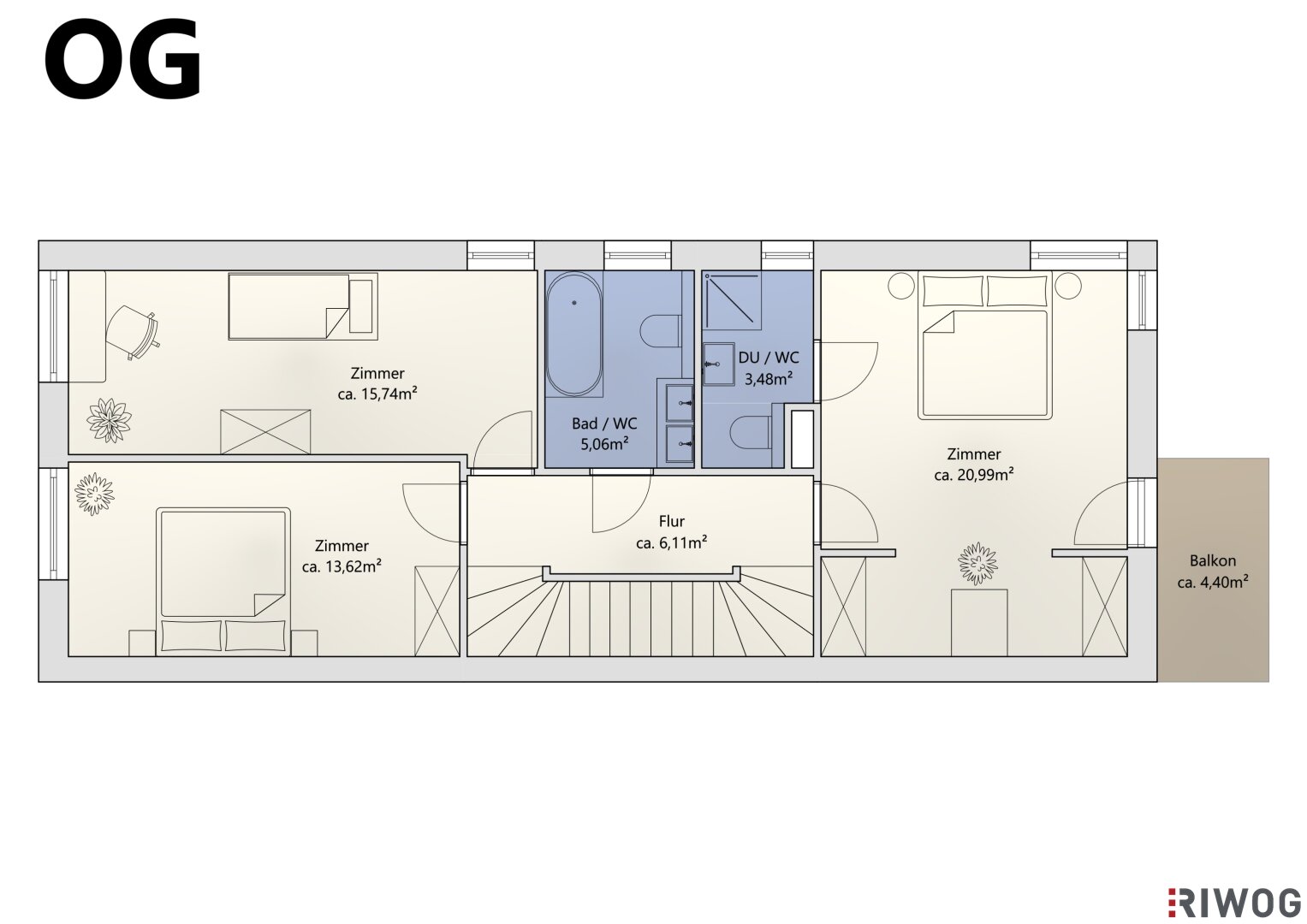
Nutzfläche: 160 m2
Gesamtfläche: 231 m2
Ziimmer insgesamt: 5
Schlafzimmer: 5
Badezimmer: 4
Nutzungsart: Wohnen
Provisionspflichtig: ja
Provision: 3% des Kaufpreises zzgl. 20% USt.
HWB: 34,80 kWh/(m²*a)
HWB Klasse: B
FGEE: 0.62
E-Ausweis Gültig Bis:: 07.10.2034
Energieausweis Art: Bedarf
Anzahl Balkone: 1
Balkon/Terrassen - Fläche: 52
WC: 4
Abstellräume: 2
Balkon
Neubau
Fußbodenheizung
Abstellraum
Freiplatz
Luft-Wärmepumpe
Massiv
Massivbauweise
Estrich
Gartennutzung
Räume veränderbar
Flachdach
Ähnliche Objekte
Alleineigentum ! Wohnen am See in einer Oase...
€ 1.100.000
5
Schlafzimmer
3
Badezimmer
November 9, 2025
Leben am Naturparadies des Mühlwassers! Groß...
€ 960.000
4
Schlafzimmer
2
Badezimmer
137 m2
Größe
November 9, 2025
Lebenstraum – Lebensraum – die K...
€ 2.780.000
8
Schlafzimmer
5
Badezimmer
268 m2
Größe
November 9, 2025










