Objektbeschreibung
IMPULS IMMOBILIEN BIETET NACHFOLGENDE WOHNUNG AB SOFORT ZUM KAUF AN:
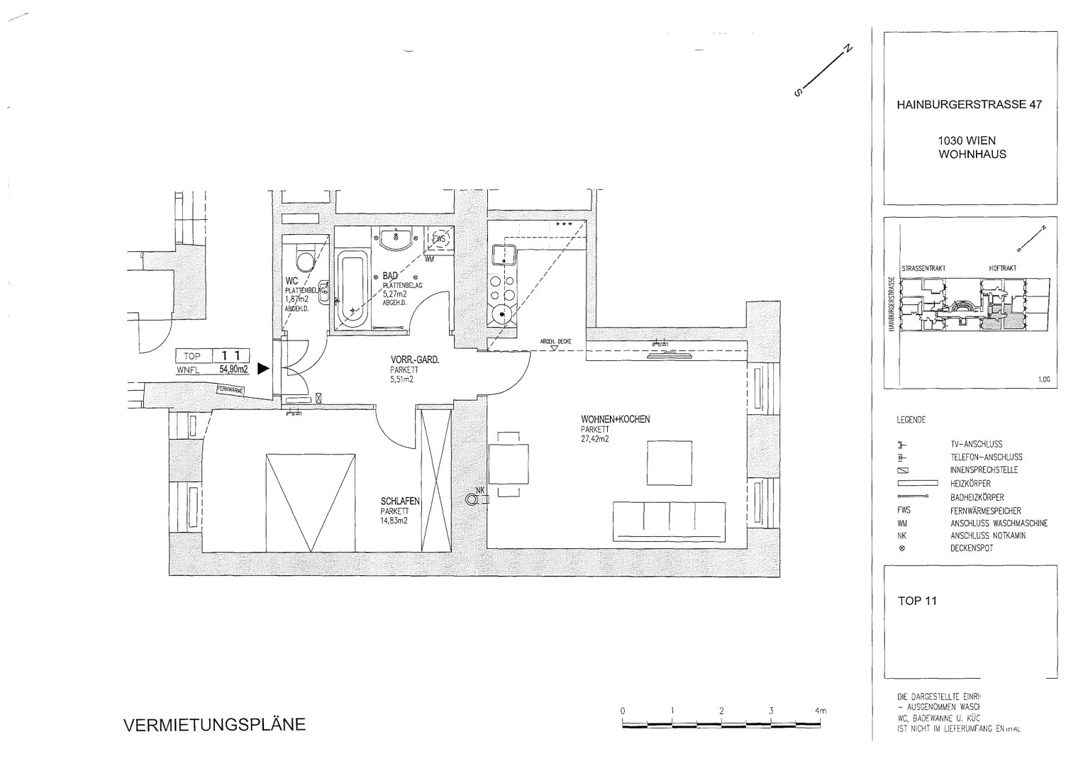
Hofseitige Altbau-Wohnung in TOP Lage, direkt neben der U-Bahn
HERZLICH WILLKOMMEN …
… in dieser schönen 2-Zimmer Altbau-Wohnung im zentral gelegenen und sehr beliebten 3. Wiener Gemeindebezirk.
DIE ECKDATEN
* 2-Zimmer Altbau-Wohnung im 1. Stock mit Lift
* ca.
Mehr lesen
Objekt ID: 2184529
Preis: € 346.000
Nutzfläche: 55 m2
Gesamtfläche: 0 m2
Ziimmer insgesamt: 2
Schlafzimmer: 2
Badezimmer: 1
Miete/m2 €: 6290.91
Nutzungsart: Wohnen
Provisionspflichtig: ja
Provision: 3% des Kaufpreises zzgl. 20% USt.
HWB: 111,30 kWh/(m²*a)
HWB Klasse: D
FGEE: 1.88
E-Ausweis Gültig Bis:: 20.08.2033
Energieausweis Art: Bedarf
Beziehbar: ab sofort
Etage: 1. Etage / 1. Stock mit Lift
WC: 1
Einbauküche
Personenaufzug
Altbau
Parkett
Badewanne
Massiv
Massivbauweise
vollerschlossen
Fernheizung
Fernwärme
Ähnliche Objekte
Anlegerhit oder Eigenheim | Sanierte 2-Zimme...
€ 299.000
2
Schlafzimmer
1
Badezimmer
60 m2
Größe
Mai 10, 2026
Hofseitige Gartenwohnung mit Terrasse I Grün...
€ 360.000
3
Schlafzimmer
1
Badezimmer
59 m2
Größe
Mai 10, 2026















