Objektbeschreibung
IMPULS IMMOBILIEN BIETET NACHFOLGENDE WOHNUNG AB SOFORT ZUM KAUF AN:
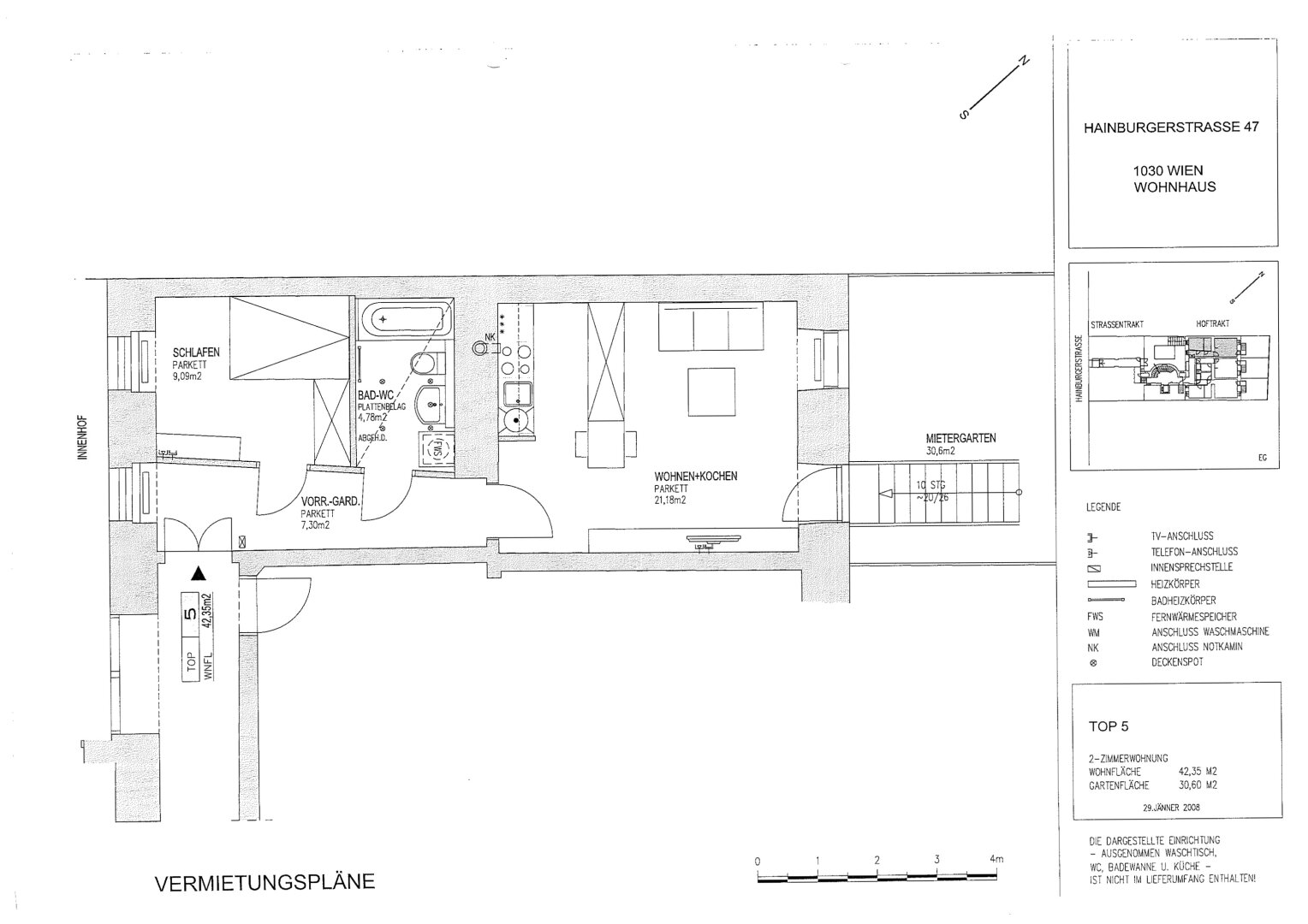
Hofseitige Altbau-Wohnung mit Garten in TOP Lage, direkt neben der U-Bahn
HERZLICH WILLKOMMEN …
… in dieser schönen 2-Zimmer Altbau-Wohnung im zentral gelegenen und sehr beliebten 3. Wiener Gemeindebezirk.
DIE ECKDATEN
* 2-Zimmer Altbau-Wohnung im Hoftrakt
* ca. 42 m²
Mehr lesen
Objekt ID: 2184596
Preis: € 318.000
Nutzfläche: 47 m2
Gesamtfläche: 0 m2
Ziimmer insgesamt: 2
Schlafzimmer: 2
Badezimmer: 1
Miete/m2 €: 6765.96
Nutzungsart: Wohnen
Provisionspflichtig: ja
Provision: 3% des Kaufpreises zzgl. 20% USt.
HWB: 111,30 kWh/(m²*a)
HWB Klasse: D
FGEE: 1.88
E-Ausweis Gültig Bis:: 20.08.2033
Energieausweis Art: Bedarf
Beziehbar: ab sofort
Etage: EG / Erdgeschoß
WC: 1
Personenaufzug
Altbau
Parkett
Badewanne
offene Küche
Offene Küche
Massiv
Massivbauweise
vollerschlossen
Wasch-/Trockenraum
Fernheizung
Fernwärme
Gartennutzung
Ähnliche Objekte
ERSTBEZUG: Hervorragend ausgestattetes Studi...
€ 470.500
1
Schlafzimmer
1
Badezimmer
36 m2
Größe
April 15, 2026
















