Objektbeschreibung
IMPULS IMMOBILIEN BIETET NACHFOLGENDES OBJEKT AB SOFORT ZUM KAUF AN:
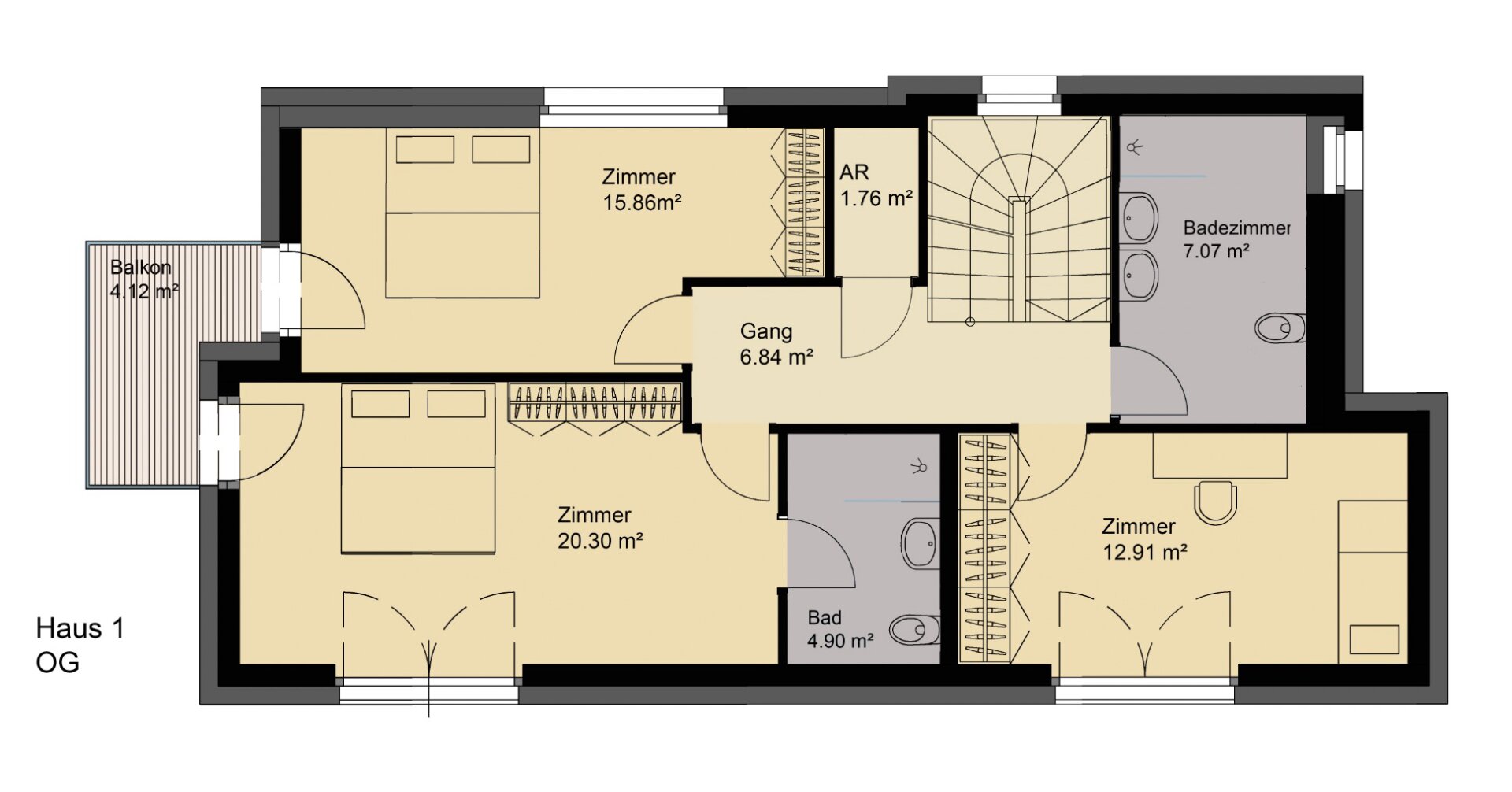
Ruhiges Einfamilien-Ziegelhaus mit herrlichem Garten und viel Platz im 22. Wiener Gemeindebezirk
HERZLICH WILLKOMMEN …
… im beliebten 22. Wiener Gemeindebezirk und einem wunderschönen Neubau in Ziegelmassivbauweise, mit viel Liebe zum Detail geplant, modern und ruhig gelegen.
FACTBOX
* Ziegelmassivhaus
Mehr lesen
Objekt ID: 2184625
Preis: € 765.000
Nutzfläche: 188 m2
Gesamtfläche: 0 m2
Ziimmer insgesamt: 5
Schlafzimmer: 5
Badezimmer: 2
Miete/m2 €: 4069.15
Nutzungsart: Wohnen
Provisionspflichtig: ja
Provision: 3% des Kaufpreises zzgl. 20% USt.
HWB: 43,10 kWh/(m²*a)
HWB Klasse: B
FGEE: 0.58
E-Ausweis Gültig Bis:: 11.08.2032
Energieausweis Art: Bedarf
Anzahl Balkone: 1
Balkon/Terrassen - Fläche: 29
Beziehbar: ab sofort
WC: 3
Abstellräume: 1
Balkon
Neubau
Einbauküche
Gäste-WC
Parkett
Bad mit Fenster
Fußbodenheizung
offene Küche
Abstellraum
Offene Küche
Freiplatz
Luft-Wärmepumpe
Massiv
Massivbauweise
vollerschlossen
Gartennutzung
Räume veränderbar
Flachdach
Ähnliche Objekte
UNIQUE RESIDENCE – Luxusvilla mit Pool...
€ 3.490.000
6
Schlafzimmer
6
Badezimmer
440 m2
Größe
April 15, 2026
























