Objektbeschreibung
IMPULS IMMOBILIEN BIETET NACHFOLGENDE WOHNUNG AB SOFORT ZUM KAUF AN:
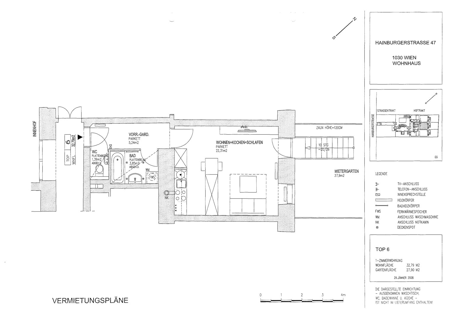
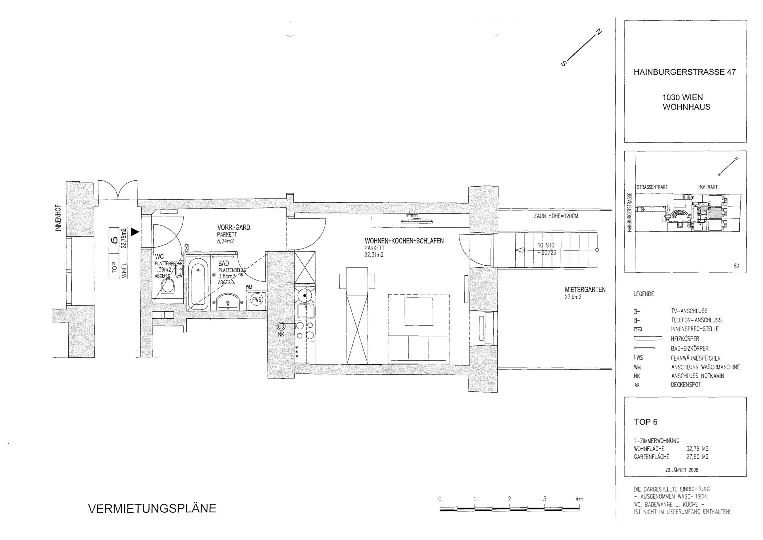
Hofseitige Altbau-Wohnung mit Garten in TOP Lage, direkt neben der U-Bahn
HERZLICH WILLKOMMEN …
… in dieser schönen 1-Zimmer Altbau-Wohnung im zentral gelegenen und sehr beliebten 3. Wiener Gemeindebezirk.
DIE ECKDATEN
* 1-Zimmer Altbau-Wohnung im Hoftrakt
* ca. 33 m²
Mehr lesen
Objekt ID: 2184650
Preis: € 249.000
Nutzfläche: 33 m2
Gesamtfläche: 0 m2
Ziimmer insgesamt: 1
Schlafzimmer: 1
Badezimmer: 1
Miete/m2 €: 7545.45
Nutzungsart: Wohnen
Provisionspflichtig: ja
Provision: 3% des Kaufpreises zzgl. 20% USt.
HWB: 111,30 kWh/(m²*a)
HWB Klasse: D
FGEE: 1.88
E-Ausweis Gültig Bis:: 20.08.2033
Energieausweis Art: Bedarf
Beziehbar: ab sofort
Etage: EG / Erdgeschoß
WC: 1
Personenaufzug
Altbau
Parkett
Badewanne
offene Küche
Offene Küche
Massiv
Massivbauweise
vollerschlossen
Wasch-/Trockenraum
Fernheizung
Fernwärme
Gartennutzung
Ähnliche Objekte
Trillerpark – Exklusive 3-Zimmer-Garte...
€ 489.000
3
Schlafzimmer
1
Badezimmer
74 m2
Größe
April 19, 2026
Lichtdurchflutete 2-Zimmer-Gartenwohnung mit...
€ 325.000
2
Schlafzimmer
1
Badezimmer
54 m2
Größe
April 19, 2026
















