Objektbeschreibung
Grünes Cumberland – Wohnen im Westen Wiens
Im beliebten, grünen Westen Wiens entstand mit dem Projekt „Grünes Cumberland“ ein stilvoll revitalisiertes Wohnhaus, das historischen Wiener Charme mit modernem Wohnkomfort verbindet. Das Gebäude – ein klassisches Gründerzeithaus mit sorgfältig gegliederter Fassade – wurde umfassend saniert und um ein hochwertig ausgebautes Dachgeschoss
Mehr lesen
Objekt ID: 2186161
Preis: € 790.418
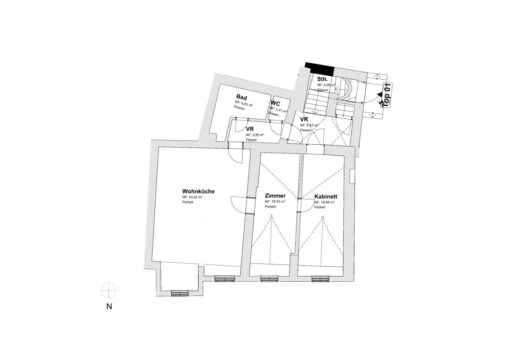
Nutzfläche: 123 m2
Gesamtfläche: 0 m2
Ziimmer insgesamt: 4
Schlafzimmer: 4
Badezimmer: 2
Nutzungsart: Wohnen
Provisionspflichtig: ja
Provision: 28.455,05 € inkl. 20% USt.
HWB: 22,70 kWh/(m²*a)
HWB Klasse: B
FGEE: 0.63
E-Ausweis Gültig Bis:: 26.03.2033
Energieausweis Art: Bedarf
Anzahl Balkone: 1
Balkon/Terrassen - Fläche: 5
Beziehbar: nach Kaufvertrag
Etage: 2. Etage / 2. Obergeschoss
WC: 2
Abstellräume: 1
Balkon
barrierefrei
Neubau
Personenaufzug
Gas
Badewanne
Kabel/Sat-TV
Zentralheizung
Ähnliche Objekte
This is more than a home: Rochusmarkt –...
€ 1.996.000
4
Schlafzimmer
2
Badezimmer
183 m2
Größe
März 29, 2026










